OCELOVÉ RÁMY

KOMFORTNÍ. SPOLEHLIVÉ. INDIVIDUÁLNÍ.


Pevné rámy, které vydrží všechno. Spolehnout se dlouhodobě na kvalitu je nejen uklidňující pocit, ale také dlouhodobě ušetříte spoustu peněz!

Stejně jako u jiných klíčových aspektů stavebních služeb (vytápění, instalatérství, elektroinstalace) je i v případě zárubní kvalita měřítkem všeho.

Dobrá ocelová zárubeň je rozměrově stabilní, bezpečně drží dveřní křídlo na svém místě a může zůstat na svém místě i v případě výměny dveřního křídla. U společnosti Novoferm "dobrá zárubeň" znamená: sedí jednou provždy, je robustní a stabilní a v každodenním životě snese opravdu všechno!

Proč ocelové rámy od společnosti Novoferm?

ROZMANITOST A ODOLNOST

Společnost Novoferm nabízí rámy pro všechny montážní situace pro svorníky, zdivo a speciální případy. Jsou robustní, rozměrově stabilní a chráněné proti korozi díky žárově pozinkovanému plechu podle DIN EN 10142, tloušťka plechu 1,5 nebo 2,0 mm, s vysoce kvalitním základním nátěrem jako ideálním podkladem pro finální nátěr.

DVEŘE, BRÁNY, ZÁRUBNĚ PŘÍMO ZE SKLADU

V našem novém logistickém centru je k dispozici více než 1 000 produktů, které se vyrábějí ve čtyřech německých výrobních závodech.

ROZMĚROVÁ PŘESNOST

Rámy Novoferm se vyznačují přesnou geometrií profilů a rozměrovou přesností při dodržení nejužších tolerančních mezí (normy EN DIN / výrobní normy Novoferm).

PROGRAMY RYCHLÉHO DODÁNÍ

Využijte naše programy rychlého dodání mnoha variant rámů a provedení.

HIGH-TECH VÝROBA RÁMŮ

1. nezaměnitelný výběr dat pomocí čárového kódu
2. označování výrobků pomocí laserové tiskárny
3. plně automatické vkládání výseků
4. absolutní přesnost uložení

NOVOFERM ZARGEN-COMPENDIUM

Kompletní rámcový program Novoferm najdete na extranetu. Najdete zde množství bezplatných a účinných nástrojů, s jejichž pomocí můžete pozitivně ovlivnit nákupní rozhodování svých zákazníků.

RÁM PODLE VAŠEHO VÝBĚRU

Novoferm nabízí nejen širokou škálu rámů, ale také přesně ten správný výrobek pro všechny požadované typy stěn. Naše vysoké standardy kvality navíc zaručují rychlou montáž, vysokou stabilitu a trvanlivost. Robustní zárubně Novoferm přečkají několik generací dveří.

PRO UDRŽITELNOU BUDOUCNOST

Naše výrobky splňují požadavky na environmentální prohlášení o produktu (EPD) v souladu s normami ISO 14025 a EN 15804 Programu pro environmentální prohlášení o produktu Institutu Bauen und Umwelt e.V. (IBU), který vychází z normy EN 15804.

EPD podle ISO 14025 a EN 15804 Posouzení životního cyklu podle DIN ISO 14040/ 14044I / Pravidla pro kategorii výrobků (PCR) Dveře

NOBLE IN STEEL

Program rámů Novoferm doplňují rámy z nerezové oceli. Tyto rámy jsou k dispozici v exkluzivních průřezech a mají tloušťku plechu od 1,5 mm do 2 mm v závislosti na provedení. Zeptejte se svého specializovaného prodejce Novoferm na všechny podrobnosti o vybavení a možnostech použití.

UKÁZAT INDIVIDUALITU

Rám dveří a s ním spojené dveře jsou jako vizitka. A proto by také měly odpovídat příslušnému domu, místnosti a uživateli. Novoferm proto nabízí všechny barvy RAL podle vašeho výběru, design RAL, metalické barvy a další pro speciální ochranu. Možnost použití prášku proti graffiti.
Barevné rámy nabízejí následující výhody:
- Práškové lakování nejvyššího stupně schválení s atestem GSB.
- Vynikající odolnost proti povětrnostním vlivům
- Vysoký lesk a barevná stálost
- Velmi dobrá přilnavost
- Dobré antikorozní vlastnosti
- Vysoká tvrdost povrchu s dobrými mechanickými hodnotami
- vynikající odolnost proti oděru
- Teplota žíhání 195 °C

Přehled typů rámů

Zděné rámy , pevné jako skála a stabilní v hodnotě - to je tradiční, pevná konstrukční metoda. Moderní ocelové zděné zárubně od společnosti Novoferm jsou stejně stabilní - ideální pro všechny dveře.

Rámy s kolíky lze snadno a rychle použít v sádrokartonové konstrukci nebo v lehkých kolíkových stěnách. Díky tomu lze snadno splnit požadavky na nové obytné nebo pracovní prostory.

Demontované rámy pro všechny typy stěn , mnoho rámů Novoferm je k dispozici také v demontovaném stavu na vyžádání. Varianty rámů, které jsou skladem, lze doručit přímo příjemci zásilkovou službou ve velmi krátké době.

Nejdůležitější informace Demontované rámy

Toto video z oblasti rámů ukazuje výhody "demontovaných rámů" z hlediska přepravy, manipulace a montáže.

Další animace najdete na adrese

https://www.youtube.com/NovofermVideos

ZAJÍMAVOSTI A FUNKCE

Dokonalost kolem rámu Novoferm
Programy rychlého dodání

Programy rychlého dodání

STANDARDIZOVANÉ RÁMY


Kdispozici jsou: speciální rámy se standardním profilem ve standardních šířkách

  • jako rohové rámy
  • jako zděné rámy
  • jako rámy na čepy v jedno- a dvoudílném provedení




Provedení: Vroubkované, tloušťka plechu 1,5 mm, pozinkované a opatřené základním nátěremExpresní příplatek: 10 % z hrubé ceníkové cenyExpresní dodávka: Do 20 rámů, větší množství na vyžádání.

Vyberte si z následujících volitelných doplňků:

  • Alternativní podkonstrukce závěsů (VNGR, VNKL, VS 8939, VX)
  • Zesílení uzamykacího otvoru MSK 412
  • Variabilní výška pákové rukojeti

  • Vícebodový zámek 15 x 20 mm, otvor s drážkou (Pozor: při objednávce uveďte typ)
  • Variabilní vybrání v podlaze
  • Šířka BRM až 1 375 mm
  • Rám do výšky 2 250 mm BRM
  • Upevnění pro standard OTS






Logistika na míru: Objednávka do 9.00 hodin - doba výroby 3 dny. 4. den po objednání v regionálním skladu. Dodání z regionálního skladu podle známého plánu tras. 4. den po objednání přímé dodání ze závodu: Lze kombinovat se standardními položkami od jednoho ložné metru.

Demontovaný rám přímo k příjemci + 3 dny.

SPECIÁLNÍ ZARGEN


Kdispozici jsou: speciální rámy s jednoduchým vroubkováním, s dvojitým vroubkováním, průchozí a spojovací rámy.

  • jako rohové rámy
  • jako zděné rámy v jednodílném a dvoudílném provedení
  • jako rámy pro svorníky v jedno- a dvoudílném provedení


Provedení: s vrubem a na tupo, možná tloušťka plechu 1,5 a 2,0 mm, pozinkované a opatřené základním nátěrem.


Expresní příplatek: 10 % z hrubé ceníkové cenyExpresní dodávka: do 20 rámů, větší množství na vyžádání

Vyberte si z následujících volitelných doplňků:

  • - Alternativní podkonstrukce závěsů (VNGR, VNKL, VS 8939, VX).
  • Zesílení uzamykacího otvoru MSK 412
  • Variabilní výška pákové rukojeti

  • Vícebodový zámek 15 x 20 mm, otvor s drážkou (Pozor: při objednávce uveďte typ)
  • Variabilní vybrání v podlaze
  • Šířka BRM do 2125 mm
  • Rám do 2550 mm výška BRM pro vysoké dveřní křídlo
  • Možnost plynulé regulace šířky 60-500 mm v krocích po 5 mm
  • Možnost šířky okraje ústí 10-20 mm






Logistika na míru: Objednávka do 9.00 hodin - doba výroby 6 dní. 7. den po objednání v regionálním skladu. Dodání z regionálního skladu podle známého plánu tras. 7. den po objednání možná přímá dodávka ze závodu: Lze kombinovat se standardními položkami od jednoho ložné metru.

Demontovaný rám přímo k příjemci + 3 dny.

Detaily zděných rámů

Detaily zděných rámů

Pevná a hodnotově stabilní - to je tradiční, pevná konstrukční metoda. Moderní ocelové zděné zárubně od společnosti Novoferm jsou stejně stabilní - ideální pro všechny dveře.
Standardní zárubně Novoferm (podle DIN 18111) jsou k dispozici v mnoha variantách a jsou vybaveny speciálními systémy pro montáž široké škály závěsů.

ECKZARGE (EZS) PROFIL 21

  • Pro dveře s falcem
  • S 30 mm výklenkem v podlaze
  • Lze použít s přivařenými kapsami pro závěsy těsnými vůči maltě V 8610 L/ R
  • Se 6 přivařenými rohovými kotvami
  • Jednoduchá montáž
  • Skladová položka

Podmínka dodání

Podmínky montáže

OBVODOVÝ RÁM (UZS) PROFIL 23

  • Pro dveře s falcem
  • S 30 mm výklenkem v podlaze
  • Lze použít s přivařenými kapsami pro závěsy těsnými vůči maltě V 8610 L/ R
  • Všestranné možnosti použití
  • Skladová položka

Kotva Ruck-Zuck

  • 8 kusů dodávaných volně
  • K dostání také jako kotva do spoje
  • Rychlá a stabilní instalace
  • Technicky propracované
  • Možnost individuálního umístění (dodržujte DIN!)

GIPSWANDZARGE (ZG) PROFIL 23/ 0045

  • Pro dveře s falcem
  • S 30 mm výklenkem v podlaze
  • Lze použít s přivařenými kapsami pro závěsy těsnými vůči maltě V 8610 L/ R
  • S maximální antikorozní ochranou proti agresivní omítce

Drátěné kotvy

  • 6 kusů dodávaných volně
  • Instalace na stěnu
  • Jednoduchá a stabilní instalace
  • Praktická a racionální

2-SCHALIGE ZARGE (ZNG) ZUM NACHTRÄGLICHEN EINBAU PROFILE 2140/ 1645

  • Pro dveře s falcem
  • Bez výklenku v podlaze
  • Lze použít s přivařenými kapsami pro závěsy V 8618 L/ R
  • Čistá a rychlá montáž
  • Pro dodatečnou montáž
  • Skryté šroubování v těsnicí drážce
  • Díky snadné demontáži lze znovu použít
  • Skladová položka

Upevňovací kotva

  • Přivařená trapézová kotva pro upevnění předního pláště
  • Pro všechny typy stěn
  • Vysoká stabilita trapézové kotvy
  • Jednoduchá instalace díky integrovanému kotevnímu držáku
  • Vysoká torzní tuhost díky speciální geometrii kotevního systému
Podrobnosti o rámečcích pro čepy

Podrobnosti o rámečcích pro čepy

Život se mění - a s ním i nároky na obytný nebo pracovní prostor. Je třeba vytvářet a dále rozvíjet nové prostory. Se špaletovými rámy Novoferm to není problém, protože je lze rychle a snadno instalovat jedinečným způsobem.


Rámy Novoferm jsou klasicky pevné, inovativně moderní a obzvláště bezpečné.

MONTÁŽNÍ DESKA PRO ZESÍLENÍ ZÁVĚSŮ PRO TĚŽKÁ DVEŘNÍ KŘÍDLA

V moderní výstavbě nemovitostí se neustále zvyšuje počet funkčních dveří s vysokou hmotností dveřního křídla. Zároveň se vnitřní příčky staví co nejtenčí. Velmi oblíbenými se staly tenké příčky se 100 mm nebo 125 mm čepovými rámy. Pro zajištění dlouhodobé funkčnosti dveřních prvků je obzvláště důležité, aby se zatížení dveřního křídla optimálně přenášelo na spodní konstrukci stěny. Právě to zajišťuje nová montážní a výztužná deska pro podkonstrukci závěsů systému VX, která je součástí dodávky z výroby. Tato volitelná speciální výztužná deska je přivařena přímo k podkonstrukci závěsu a poté pevně spojena s UA profilem stěny s rámem čepu.


STÄNDERWANDZARGE (ZGK) PROFIL 23/ 1645

STÄNDERWANDZARGE (ZGK) PROFIL 23/ 1645

  • Pro dveře s falcem
  • Standardní provedení s 16mm falcem
  • Bez vybrání v podlaze
  • Lze použít podkonstrukci závěsu V 8618 L/ R
  • Se speciálně přizpůsobenými díly rámu V 8100/ 18 (nejsou součástí dodávky).
  • Bez zapuštění sádrokartonových desek
  • S přivařenými kotvami s víčkem, možnost jednoduchého nebo dvojitého obložení
  • Skladové položky


STOJANOVÝ STĚNOVÝ RÁM (ZGK) PROFIL 23/ 0045

STÄNDERWANDZARGE (ZGK) PROFIL 23/ 0045

  • Pro dveře s falcem
  • Konvenční falcování 10 mm, vizuálně stejné provedení jako zděné zárubně.
  • Bez zapuštění do podlahy
  • Lze použít podkonstrukci závěsu V 8610 L/R
  • Pro kapsy závěsů a ochranné schránky ve stěně je nutné provést zářezy.
  • S přivařenými kotvami s víčky, možnost jednoduchého nebo dvojitého obložení



DVOUPLÁŠŤOVÝ RÁM PRO DODATEČNOU MONTÁŽ PROFILU 2140/ 1645

2-SCHALIGE ZARGE ZUM NACHTRÄGLICHEN EINBAU PROFIL 2140/ 1645

  • Pro dveře s falcem
  • Bez výklenku v podlaze
  • Lze použít podkonstrukci závěsu V 8618 L/R
  • Čistá a rychlá montáž
  • Pro dodatečnou montáž
  • Skryté přišroubování v těsnicí drážce
  • Opakovaně použitelný díky snadné demontáži
  • Vysoká stabilita
  • Skladová položka

KOTVA PRO STÄNDERWERK

Trubková kotva

  • Standardní velikosti jednořadé
  • Větší šířky čelistí uspořádané ve dvou řadách posunutých nebo vedle sebe
Podrobnosti Demontované rámy

Podrobnosti Demontované rámy

DEMONTOVANÉ RÁMY PRO VŠECHNY TYPY STĚN

Na přání je mnoho variant rámů Novoferm k dispozici také v demontovaném stavu pro rychlé dodání a obzvláště snadnou a bezpečnou přepravu. Varianty rámů, které jsou skladem, mohou být doručeny přímo příjemci ve velmi krátké době prostřednictvím zásilkové služby. Při objednání do 10:00 hodin je to obvykle následující pracovní den.
S novou trapézovou kotvou je také montáž variant dvouplášťových profilů velmi jednoduchá, rychlá a bezpečná.

  • Rozloženo na tři praktické samostatné části
  • Dodává se v kompaktním balení
  • Optimální ochrana proti poškození při přepravě
  • Obzvláště snadné skladování
  • Snadná přeprava autem
  • Rychlá a levná přeprava

  • Snadná manipulace na staveništi

IDEÁLNÍ PRO DODATEČNOU MONTÁŽ

PROFIL 2140

PROFIL 2140: DVOUDÍLNÝ RÁM - ŠROUBUJE SE DO TĚSNICÍ DRÁŽKY - PRO VŠECHNY TYPY STĚN

  • Pro dveře s falcem a dveře bez falce
  • Dobře se hodí do hotových místností
  • Snadná instalace díky speciálním kotvám, také pro pultový rám
  • Skryté přišroubování v těsnicí drážce
  • Opakovaně použitelný rám

PROFIL 2150

PROFIL 2150: DVOUDÍLNÝ RÁM - S TOLERANCÍ ŠÍŘKY LÍCE PRO ZDIVO

  • Variabilní šířka čelistí -8 / +10 mm
  • Možnost všech geometrií profilů (např. posuvné dveřní rámy před stěnou)
  • S viditelnou dělící spárou
  • S rohovými kotvami v zákrytu

PROFIL 2150

PROFIL 2150: DVOUDÍLNÝ RÁM - S TOLERANCÍ ŠÍŘKY ČELA PRO SLOUPKY

  • Variabilní šířka otvoru -8 / +10 mm
  • Možnost všech geometrií profilů (např. posuvné zárubně před stěnou)
  • S viditelnou dělící čarou

  • Montáž šrouby do příčle

DEMONTOVANÁ KONSTRUKCE RÁMU A TRAPÉZOVÝ KOTEVNÍ SYSTÉM

  • Přesně lícující rohové spoje rámu instalované z výroby
  • Stabilní trapézové kotvy v přední části rámu
  • Snadná instalace protiplechu díky speciální geometrii kotevního systému
  • Speciální kotva protikusu, tečkovaná v odhalení protikusu
  • Pro rozměrově přesné otvory v rámu s čepy není třeba trapézové kotvy překrývat.
Speciální rámy a povrchy

Speciální rámy a povrchy

RÁMY PRO KAŽDOU APLIKACI

Rámy z nerezové oceli bodují nejen svým atraktivním vzhledem, ale také odolností vůči vlhkosti. Rámy z nerezové oceli se zpravidla používají v prostředí, kde je vyžadována vysoká úroveň čistoty.





Materiál: V2A = WST 1.4301 / V4A = WST 1.4571 (pouze 1,5 mm)Tloušťkaplechu: 1,5 nebo 2 mm Nerezové rámyz oceli Nerezové rámy doplňují program rámů Novoferm. Tyto rámy jsou k dispozici v exkluzivních průřezech a mají tloušťku plechu od 1,5 mm do 2 mm v závislosti na provedení.

Zeptejte se svého specializovaného prodejce Novoferm na všechny podrobnosti o vybavení a možnostech použití.

UKÁZAT INDIVIDUALITU

Rámy Novoferm se vyznačují přesnou geometrií profilů a rozměrovou přesností při dodržení nejužších tolerančních mezí (normy EN DIN / výrobní normy Novoferm). Rám a s ním spojené dveře jsou jako vizitka. A proto by měl také odpovídat příslušnému domu, místnosti a uživateli. Novoferm proto nabízí všechny barvy RAL podle vašeho výběru, design RAL, metalické barvy a další pro speciální ochranu. Možnost použití prášku proti graffiti.

Barevné rámy nabízejí následující výhody:

  • Práškové lakování nejvyššího stupně schválení s atestem GSB.
  • Vynikající odolnost proti povětrnostním vlivům
  • Vysoký lesk a barevná stálost
  • Velmi dobrá přilnavost
  • Dobré antikorozní vlastnosti
  • Vysoká tvrdost povrchu s dobrými mechanickými hodnotami
  • vynikající odolnost proti oděru
  • Teplota žíhání 195 °C

PRO UDRŽITELNOU BUDOUCNOST

Naše výrobky splňují požadavky na environmentální prohlášení o produktu (EPD) v souladu s normami ISO 14025 a EN 15804 Programu pro environmentální prohlášení o produktu Institutu Bauen und Umwelt e.V. (IBU), který vychází z normy EN 15804.

  • EPD podle ISO 14025 a EN 15804
  • Posouzení životního cyklu podle normy DIN ISO 14040/ 14044
  • Pravidla pro kategorii výrobků (PCR) Dveře

Přehled vašich plusových bodů

  • Vysoká stabilita a odolnost
  • Široká nabídka rámů pro všechny montážní situace
  • Rámové konstrukce, zděné konstrukce a zvláštní případy
  • Téměř všechny varianty rámů jsou k dispozici také v demontovaném stavu

TECHNOLOGIE A PODROBNOSTI

TECHNICKÉ ÚDAJE RÁMŮ PRO ZDIVO A BETON

TECHNICKÉ ÚDAJE RÁMŮ PRO ZDIVO A BETON

Rozměrová tabulka pro ocelové rámy Novoferm



Standardní rámy pro zdivo, sádrokartonové stěny a kámen Ytong



Standardní rámy pro zdivo, sádrokartonové stěny a kámen Ytong

Celkové rozměry
(viz DIN 18100)

Rozměry vroubkování rámu
(viz DIN 18111)

Čirý rám
volný prostor
rozměry
(viz DIN 18111)

Jmenovitá velikost
otvoru ve stěně
Rozměr pláště
(RBM)

Jmenovitý rozměr
otvoru ve stěně
Rozměr skořepiny
(RBM)

Šířka x výška

Šířka x výška

Šířka x výška

Šířka x výška

Šířka x výška


750 x 1.875 1) 2)

716 x 1.858

686 x 1.843

760 x 1.880

760 x 1.880


875 x 1.875 2)

841 x 1.858

811 x 1.843

885 x 1.880

885 x 1.880


1000 x 1.875 1) 2)

966 x 1.858

936 x 1.843

1.010 x 1.880

1.010 x 1.880

625 x 2.000

591 x 1.983

561 x 1.968

635 x 2.005

635 x 2.005

750 x 2.000

716 x 1.983

686 x 1.968

760 x 2.005

760 x 2.005

875 x 2.000

841 x 1.983

811 x 1.968

885 x 2.005

885 x 2.005

1.000 x 2.000

966 x 1.983

936 x 1.968

1.010 x 2.005

1.010 x 2.005


625 x 2.125 1)

591 x 2.108

561 x 2.093

635 x 2.130

635 x 2.130

750 x 2125

716 x 2.108

686 x 2.093

760 x 2.130

760 x 2.130

875 x 2.125

841 x 2.108

811 x 2.093

885 x 2.130

885 x 2.130

1.000 x 2.125

966 x 2.108

936 x 2.093

1.010 x 2.130

1.010 x 2.130


1.125 x 2.125 1) 3)

1.091 x 2.108

1.061 x 2.093

1.135 x 2.130

1.135 x 2.130


1.250 x 2.125 1) 3)

1.216 x 2.108

1.188 x 2.093

1.260 x 2.130

1.260 x 2.130

1) Celkové rozměry a související rozměry nejsou zahrnuty v DIN 18111 2) Standardně pouze pro rohové rámy 3) Není skladem

 

ZEDNICKÉ RÁMY

Šířka úst

Standardní rámečky Novoferm

Pro zdivo

Pro omítnuté stěny

80

-

-

90

-

-

100

-

-

130

-

-

145

-

-

160

-

-

175

-

-

205

-

-

270

-

-

290

-

-

330

-

-


Svislý řez Rám s nadpražím


Vodorovný řez Rám se stěnou Zdivo

TECHNICKÉ ÚDAJE RÁMY PRO SUCHOU VÝSTAVBU

TECHNICKÉ ÚDAJE RÁMY PRO SUCHOU VÝSTAVBU



Standardní rámy pro čepové rámy, profil 23/1645



Dvoudílné v drážce šroubované Profil 2140/1645


2dílné s dělící čárou Profil 2150/0040

Kotevní poloha Pozor!
Montáž podél stěny

Jmenovitý rozměr
(= instalační rozměr)

Jmenovitý rozměr
otvoru ve stěně

Vnější rozměry dveřního křídla
(typový rozměr, viz
DIN 18101)

Šířka x výška

Šířka x výška

Šířka x výška

Šířka x výška

769 x 1.885

750 x 1875

730 x 1.865

730 x 1.865

894 x 1.885

875 x 1875

855 x 1.865

855 x 1.865

1.019 x 1.885

1.000 x 1.875

980 x 1.865

980 x 1.865

644 x 2.010

625 x 2.000

605 x 1.990

605 x 1.990

769 x 2.010

750 x 2.000

730 x 1.990

730 x 1.990

894 x 2.010

875 x 2.000

855 x 1.990

855 x 1.990

1.019 x 2.010

1.000 x 2.000

980 x 1.990

980 x 1.990

644 x 2.135

625 x 2.125

605 x 2.115

605 x 2.115

769 x 2.135

750 x 2.125

730 x 2.115

730 x 2.115

894 x 2.135

875 x 2.125

855 x 2.115

855 x 2.115

1.019 x 2.135

1.000 x 2.125

980 x 2.115

980 x 2.115

1.144 x 2.135

1.125 x 2.125

1.105 x 2.115

1.105 x 2.115

1.269 x 2.135

1.250 x 2.125

1.230 x 2.115

1.230 x 2.115

 

Šířka úst

Standardní rámečky Novoferm

Pro stěny se svorníkovými rámy

75

100

125

150


Vodorovná část Rám s rámem pro stěnové trny


Svislý řez Rám s nadpražím

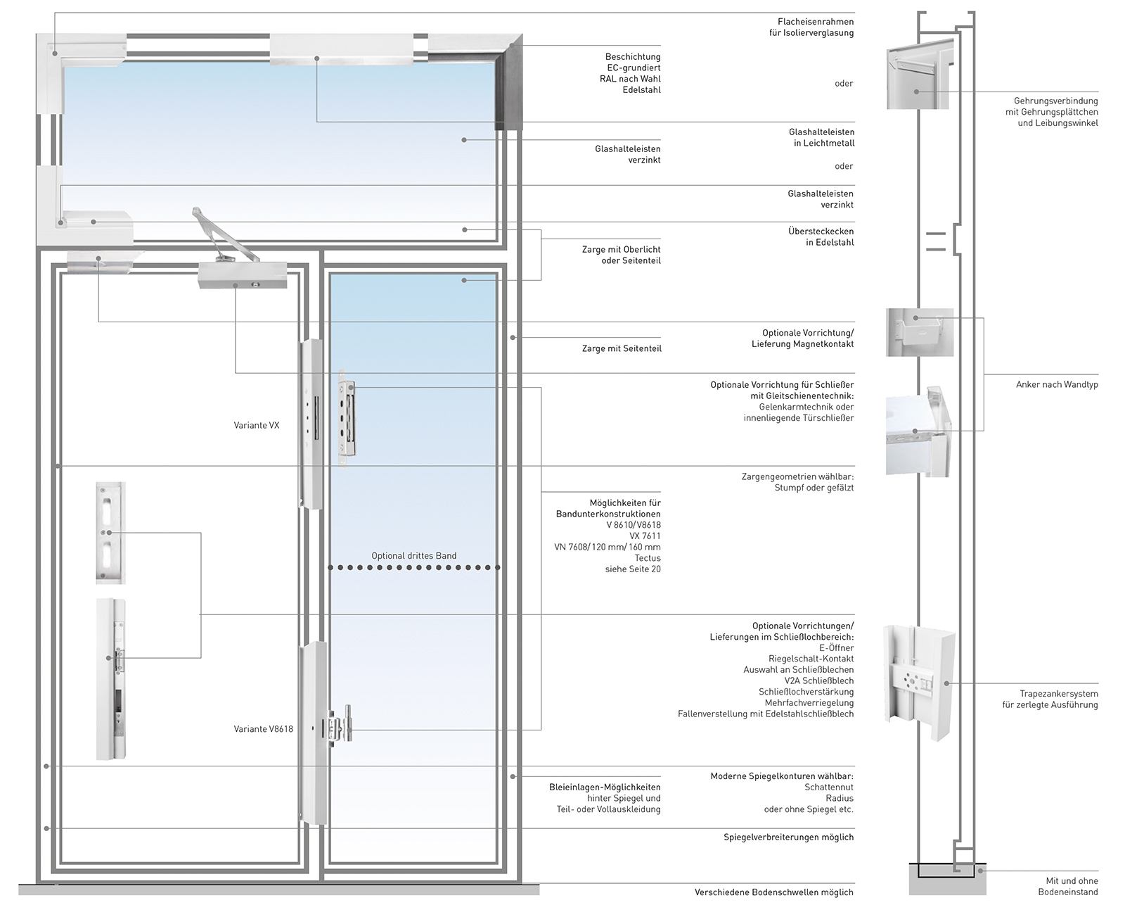
Možnosti a řešení

Možnosti a řešení

Eckzarge

Rohový rám s rádiusem

Dvojitý rohový rám


Dvojitý rohový rámse stínovou drážkou

Rohový rám tělocvičny

Okolní rám


Obvodový ráms poloměrem


Obvodový rám se stínovou drážkou


Dekorativní vroubkovaný rám se stínovou drážkou


Dvojitý rám dveří s rádiusem

Rám s dvojitým vroubkováním


Rám s dvojitým vroubkováním a jednostrannou stínovou drážkou

Rám kyvadlových dveří


Průchozí rám se stínovou drážkou

Rám dilatační spáry



Obvodový ráms olověnou vložkou (ochrana proti záření)



Rám posuvných dveří Probíhající ve stěně (svislá část)



Rám posuvných dveří Probíhající ve stěně (vodorovná část)



Rám posuvných dveří před stěnou (svislá část)



Rám posuvných dveří Běh před stěnou (vodorovná část)



Rám posuvných dveří předsazený před stěnu se skleněným dveřním křídlem (svislá část)


Rám posuvných dveří probíhající ve výklenku (vodorovná část)


Rám posuvných dveří s instalační krabicí (vodorovná část)


Rám posuvných dveří před stěnou Dvoudílné provedení (svislá část)


Dvoudílný rám pro všechny typy stěn


Dvoudílný ráms rádiusem


Rám bez zrcadla


Dvoudílný ráms tolerancí šířky čelistí


dvoudílný ráms tolerancí šířky čelistí a stínovou drážkou


Okenní rámpro jednostranné zasklení


Okenní rámpro dvojité zasklení

Možné instalační situace

Možné instalační situace


Instalacerohového rámu Hmoždinka s kotvou rohového rámu na stěnu a odkrytí


Montážrohového rámu Hmoždinky s kotvou rohového rámu pouze v oblasti odhalení (odkryté zdivo)


Rohový ráms děrováním hmoždinek v oblasti drážky (renovace)


Rohový rám Svařovaná montáž na hmoždinkovou konzolu


Obvodový rám Svařovaná instalace na hmoždinkovou konzolu (odkryté zdivo)


Okolní rám Instalace pomocí rychloupínací kotvy (standardní) nebo kotvy na spáry (obnažené zdivo).


Obvodový rám Instalace injektáže pomocí vlnitých kotev


Obvodový rám pro sádrokartonové desky, montáž pomocí drátěné kotvy


Obvodový rám Instalace s přivařenou plochou kotvou metodou lití do betonu


Okolní rám Instalace s uvolněnou vrtulovou kotvou (betonové stěny)


Obvodový ráms děrováním otvorů pro hmoždinky v odkrytí


Dvoudílný rám pro obklopení Není možné použít žádný nátěr podle vzorníku RAL


Rohový a pultový rám Svařovaná instalace na hmoždinkovou konzolu (odkryté zdivo)


Rám s čepy GK Šroubová montáž na U-kotvy


Rám s čepy GK Montáž šroubem přes příčník


2dílný prostorový rám Instalace šrouby do otvoru (vhodné pro všechny typy stěn)


2dílný rám s tolerancí šířky čelistí, šroubová montáž se zrcadlem


Teleskopický rám pro univerzální přizpůsobení na místě, vhodný pro všechny typy stěn


Okolní rám Instalace s uvolněnou vrtulovou kotvou (betonové stěny)

Obvodový rám s olověnou vložkou (ochrana proti záření)

Pásové podkonstrukce

Pásové podkonstrukce

NENÍ NASTAVITELNÝ VE 3-D

TypTyp PopisTyp pásu

Nosnost

V 8610Pozinkovaný (volitelně V2A)V 8000

60 kg

DIN vpravo a vlevoV 8100

80 kg

Těsnění pro maltuVN 8939/100

100 kg

Více než 200 možných kombinací

TypTyp PopisTyp pásu

Nosnost

V 8618Pozinkovaný (volitelně V2A)V 8000/18

60 kg

DIN vpravo a vlevoV 8100/ 18

80 kg

Více než 200 možných kombinací

TypTyp PopisTyp pásu

Nosnost



Dvojitá kapsa naopasku
Montážní prvek VARIANT V 8600 nebo V 8610VN 8938/ 160

150 kg

Lze použít vlevo nebo vpravo

Funkční oblast: Protipožární ochrana, ochrana proti kouři
Pozinkované

3-D NASTAVITELNÝ

TypTyp PopisTyp pásu

Nosnost

VX 7611S vysokou nosnostíVX 7729/ 100

100 kg

Pro dveře s falcem a bez falceVX 7939/ 100

100 kg

Těsnění proti maltěVX 7729/ 120

120 kg




Třírozměrně plynule nastavitelná strana +/- 3,0 mm, výška +/- 3,0 mm, tlak +/- 3,0 mm.
VX 7939/ 120

120 kg

VX 7729/ 160

160 kg

VX 7939/ 160

160 kg

TypTyp PopisTyp pásu

Nosnost

VN 7608/120Pro dveře s falcem a bez falceVN 7748/ 100

100 kg

Těsnění proti maltěVN 7938/ 100

100 kg

PozinkovanéVN 7728/ 120

100 kg





Třírozměrná plynule nastavitelná strana +/- 3,0 mm, výška +/- 3,0 mm, tlak +/- 2,0 mm
VN 7729/ 120

120 kg

VN 7939/ 120

120 kg

VN 7939/ 120

160 kg

TypTyp PopisTyp pásu

Nosnost

VN 7608/160Pro dveře s falcem a bez falceVN 7729/160

160 kg

Těsnění proti maltěVN 7939/160

160 kg

Těsnění pro minometVN 7939/160 FD

160 kg




Třírozměrně plynule nastavitelná strana +/- 3,0 mm, výška +/- 3,0 mm, tlak +/- 3,0 mm.
VN 7939/160s

160 kg

VN 7939/160 FDs

160 kg

TypTyp PopisTyp pásu

Nosnost

TectusZcela skrytýTectus 305

60 kg

Pro nedrážkované dveřeTectus 310

60 kg

Trojrozměrně nastavitelnýTectus 340

80 kg

Certifikát CETectus 510

100 kg

Úhel otevření až 180Tectus 526

120 kg

Celková délka 140/ 141 mmTectus 527

120 kg

Použitelný podle DIN vpravo nebo vlevoTectus 540

120 kg




Bezúdržbová technologie kluzných ložisek Strana +/- 3,0 mm Výška +/- 3,0 mm Přítlak +/- 1,0 mm
Tectus 630

200 kg

Tectus 640

200 kg

Tectus 645

300 kg

* Nosnost pro příkladné kombinace pásů v závislosti na systému pásů. Vztahuje se na použití se dvěma závěsy. Při použití třetího závěsu lze hmotnost vrat zvýšit přibližně o 30 %.
Hmotnost křídla vrat by neměla překročit 70 % hodnot zatížení.

Těsnění pohlcující zvuk

Těsnění pohlcující zvuk

VŠE ZÁVISÍ NA DOKONALÉM UTĚSNĚNÍ

Těsnicí profily Novoferm zajišťují, že nedochází k průvanu ani hluku. Profil rtu pro rozšíření uzavírací plochy zajišťuje tiché zavírání. Díky optimální zvukové izolaci a vynikajícímu tlumení zavírání je zapotřebí pouze nízký zavírací tlak.

  • Trvale pružné
  • Rozměrově stabilní
  • Vysoká odolnost
  • Odolnost vůči stárnutí
  • Různé barvy
  • Snadné zpracování
  • Zvuk pohlcující
  • Vyrovnání tolerance
  • Šetrné k životnímu prostředí (bez PVC)

PROFILVARIANTEN

NázevMateriál*BarvaVlastnosti
C 190NTKŠedáStandardní profil
BílýVyrovnání tolerance ± 2,5 mm
HnědáTlumení zvuku ± 2,5 mm
Černá

* MateriályNTK: Novoferm Thermo Rubber / APTK: Etylenpropylenterpolymerní kaučuk (syntetický kaučuk) EPDM: Mezinárodní označení pro APTK.
NázevMateriál*BarvaVlastnosti
C 260NTKŠedáO 2 mm vyšší než C190

* MateriályNTK: Novoferm Thermo Rubber / APTK: Etylenpropylenterpolymerní kaučuk (syntetický kaučuk) EPDM: Mezinárodní označení pro APTK.
NázevMateriál*BarvaVlastnosti
C 197NTKŠedáO 4 mm vyšší než C 190

* MateriályNTK: Novoferm Thermo Rubber / APTK: Etylenpropylenterpolymerní kaučuk (syntetický kaučuk) EPDM: Mezinárodní označení pro APTK
NázevMateriál*BarvaVlastnosti
C 205NTKŠedáO 2 mm nižší než C 190

* MateriályNTK: Novoferm Thermo Rubber / APTK: Etylenpropylenterpolymerní kaučuk (syntetický kaučuk) EPDM: Mezinárodní označení pro APTK.
NázevMateriál*BarvaVlastnosti
C 210NTKŠedáO 4 mm nižší než C 190

* MateriályNTK: Novoferm Thermo Rubber / APTK: Etylenpropylenterpolymerní kaučuk (syntetický kaučuk) EPDM: Mezinárodní označení pro APTK.
NázevMateriál*BarvaVlastnosti
11089APTK (EPDM)šedáStandardní profil
Vyrovnání tolerance ± 2,5 mm
Aktivní pohlcování zvuku ± 2,5 mm

* MateriályNTK: Novoferm Thermo Rubber / APTK: Aethylenpropylenterpolymerová pryž (syntetická pryž) EPDM: Mezinárodní označení pro APTK.

Montáž

na příkladu demontovaných rámů pro stěny se svorníkovými konstrukcemi.

Rámy Novoferm lze instalovat obzvláště rychle. Níže naleznete postupnou přípravu a instalaci demontovaných rámů pro stěny se svorníky. Veškeré podrobnosti naleznete v podrobném montážním návodu.

Příprava na montáž

Příprava na montáž

Rám rozložený na tři praktické části rámu

Přišroubujte hlavici rámu k levé a pravé rukojeti rámu.

Vyrovnání částí rámu

Vyšroubujte šrouby v drážce rámu a uschovejte je pro pozdější instalaci.

Sestavte části rámu

Pak obě poloviny skořápky oddělte

Montáž

Montáž

Pohled na přední a zadní plášť

Ve standardním provedení přední plášť se třemi stabilními lichoběžníkovými kotvami na každé straně.

Zasuňte přední plášť do otvoru a zarovnejte jej.

Připevněte všechny trapézové kotvy k profilu UA pomocí šroubů. Podle potřeby proveďte podložení.

Pohled na přední a zadní plášť

Ve standardním provedení přední plášť se třemi stabilními lichoběžníkovými kotvami na každé straně.

Zasuňte přední plášť do otvoru a zarovnejte jej.

Připevněte všechny trapézové kotvy k profilu UA pomocí šroubů. Podle potřeby proveďte podložení.

Vložte dodaný těsnicí profil do drážky rámu.

Kompletně sestavený rám

Vzbudili jsme váš zájem?

Novoferm spolupracuje s širokou sítí specializovaných prodejců v Německu - ve vašem okolí. Naši autorizovaní specializovaní prodejci Novoferm nabízejí odborné poradenství, prodej, měření, montáž, demontáž a ekologickou likvidaci našich výrobků za konkurenceschopné ceny all-inclusive.

Rádi vám pomůžeme.