Systémy posuvných dveří NovoSlide

Pro dřevěné a skleněné dveře


Maximální designová rozmanitost s nejmodernější technologií běžeckých drah pro nejvyšší nároky Rostoucí touha po optimálním využití prostoru, ale také po efektivnějším a pohodlnějším bydlení v kombinaci s trendem estetického úklidu jsou stále zřetelnější potřeby. K tomu se přidávají rostoucí nájmy, malé byty a rostoucí potřeba volného a flexibilního obytného prostoru.

Rozhodněte se pro systémy posuvných dveří NovoSlide Wall, které optimalizují využití prostoru ve vaší domácnosti.

Přehled typů posuvných dveří

NovoSlide Wall jako systém posuvných dveří před stěnou

NovoSlide Pocket, systém posuvných dveří, který se v demontovaném stavu zasouvá do stěny jako nástěnná skříňka.

NovoSlide Frame, systém posuvných dveří vedených před stěnou s integrovaným ocelovým průchozím rámem.

ZAJÍMAVOSTI A FUNKCE

Podrobnosti NovoSlide Pocket

Podrobnosti NovoSlide Pocket

SYSTÉM POSUVNÝCH DVEŘÍ VE STĚNĚ

Systém posuvných dveří NovoSlide Pocket bez problémů zapadá do otvoru ve stěně. Skládá se z kovového boxu vyrobeného na míru, stabilní hliníkové kolejnice se sadami kování pro dřevěné nebo celoskleněné dveře na místě a volitelného ocelového rámu a otevírá maximální svobodu pro inovativní půdorysy.
NovoSlide Pocket se proto skvěle uplatní jak v soukromých domech, tak v komerčních budovách. Systém posuvných dveří je určen pro montáž do suchých stěn a je k dispozici ve standardních šířkách dveřního křídla od 610 mm do 1 235 mm.

Speciální rozměry na vyžádání.

PŘESVĚDČIVÉ VÝHODY MONTÁŽE

  • Rychlá montáž díky malému počtu součástí
  • Kompletní montážní příslušenství je součástí dodávky
  • včetně potřebných šroubů pro obložení sádrokartonem na místě montáže
  • snadná přeprava na stavbu a na staveništi díky praktickému kartonovému balení demontovaného systému pro přepravu
  • Oboustranná kolejnice a dveře
  • Nastavitelná parkovací poloha po montáži dveřního křídla
  • Označení metrů pro zjednodušení montáže
  • výškové vyrovnání pomocí volitelných nastavitelných nožiček
  • K dispozici také jako předem smontovaná jednotka

MAXIMÁLNĚ SNADNÉ POUŽITÍ

  • Oboustranný výsuvný tlumič do hmotnosti křídla vrat 80 kg
  • Nejsou nutné žádné koncové zarážky, tlumič jemně zaparkuje vrata
  • Velmi tichý chod díky systému kuličkových ložisek válečků

  • Dřevěné nebo skleněné dveře a kování lze namontovat na místě podle vašeho výběru

VOLITELNĚ

  • s ocelovým rámem nebo bezrámové provedení s odhalením ze sádrokartonu Novoferm nebo s dřevěným rámem na stavbě
  • Moderní magnetický plovoucí pohon, ovládaný dotykem na otevření, bezdotykovým tlačítkem, radarovým detektorem nebo aplikací.
Podrobnosti NovoSlide Wall

Podrobnosti NovoSlide Wall

SYSTÉM POSUVNÝCH DVEŘÍ PŘED STĚNOU

Řešení posuvných dveří NovoSlide Wall zaujme optimální jednoduchostí použití a atraktivním designem.

PŘESVĚDČIVÉ VÝHODY MONTÁŽE

  • Kompenzace stávajícího rámu a lišt integrovaných do kolejnice
  • Velmi stabilní konstrukce kolejnice díky optimalizovanému profilování
  • Jednoduchá montáž na stěnu díky předvrtanému hliníkovému profilu (stupňovité vrtání otvorů)
  • Velmi jednoduchá montáž panelů díky technologii "clip technology"
  • Včetně kompletního montážního příslušenství pro montáž dveřního křídla na kolejnici, např. upínacího kování pro skleněné dveře.

MAXIMÁLNĚ SNADNÉ POUŽITÍ

  • Oboustranná výsuvná klapka ve standardní výbavě pro maximální pohodlí až do hmotnosti dveřního křídla 80 kg.
  • Nejsou nutné žádné koncové zarážky, protože klapka šetrně zaparkuje dveřní křídlo na obou stranách
  • Tichý chod díky systému kuličkových ložisek.
  • včetně podlahového vedení Deluxe s hliníkovým profilem a plastovým vedením s kuličkovými ložisky pro mimořádně klidný chod a plastovou vodicí planžetou
  • volitelně také s moderním pohonem s magnetickou levitací, ovladatelným dotykem na otevření, bezdotykovým tlačítkem, radarovým detektorem nebo aplikací.

VELKÁ ROZMANITOST DESIGNU

  • Dřevěné nebo skleněné dveře a kování dle vašeho výběru na místě
  • na pevné nebo suché stěny
  • Šířka dveřního křídla je možná již od 580 mm
  • max. délka kolejnic 5 800 mm

UNIVERZÁLNÍ APLIKACE

  • pro soukromé domy nebo komerční budovy
  • pro rekonstrukce nebo novostavby
  • Posuvné dveře pro moderní půdorysy umožňují manévrování, šetří cenný prostor a vytvářejí prostor.
Podrobnosti Rám NovoSlide

Podrobnosti Rám NovoSlide

SYSTÉM POSUVNÝCH DVEŘÍ PŘED STĚNOU S INTEGROVANOU OCELOVOU ZÁRUBNÍ.


Systém posuvných dveří NovoSlide Frame s integrovaným ocelovým rámem a bočním vstupním profilem je ideálně navržen pro řešení vysoce zatížených a vysoce frekventovaných průchodů.

VELKÁ ROZMANITOST DESIGNU

  • Dřevěné nebo skleněné dveře a kování dle vašeho výběru na místě
  • v plných nebo suchých stěnách
  • Šířka dveřního křídla je možná již od 580 mm
  • Maximální délka kolejnic 5 800 mm
  • Obvodový rám s dorazovým sloupkem, jednoplášťový pro plnou stěnu nebo doprovodnou montáž do suché stěny nebo dvouplášťový pro následnou montáž do suché stěny nebo zdiva
  • Možnost mnoha variant, např. s větracím oknem nebo bočním panelem.
  • Také pro řešení dvoukřídlých posuvných dveří
  • Různé geometrie rámových profilů z hlediska poloměrů a stínové drážky na protilehlé straně dveřního křídla.
  • Volitelný oboustranný výsuvný tlumič pro maximální komfort až do hmotnosti dveřního křídla 80 kg.
  • volitelně k dispozici také s vysoce kvalitní pojezdovou dráhou pro dveře > 100 kg s odpovídajícím tlumičem náběhu.

Je proto ideální pro použití např. v.

  • Pokoje pro pacienty v nemocnicích a na klinikách nebo v pečovatelských domech
  • ordinace lékařů
  • studentské koleje
  • budovy veřejné správy
  • hotely a restaurace
  • ale samozřejmě také pro soukromé obytné budovy

PŘESVĚDČIVÉ VÝHODY MONTÁŽE

  • Oboustrannost běžecké dráhy
  • otvor z výroby pro upevnění běžecké skříně na stěnu
  • Běžecká dráha se dodává volně pro rychlou instalaci na stavbě
Magnetický pohon posuvných dveří Rapid

Magnetický pohon posuvných dveří Rapid

NOVOSLIDE WALL RAPID

  • pro montáž na stěnu nebo volitelně na strop
  • zobrazeno zde: Zdivo s dřevěným dveřním křídlem
  • s dřevěnými dveřními křídly vždy s kuličkovým vedením podlahy a zapuštěným kováním

NOVOSLIDE KAPESNÍ RAPID

  • s dvoudílným ocelovým rámem, svařovaným nebo demontovaným, pozinkovaným a opatřeným základním nátěrem nebo volitelně s GK odhalením (na obrázku), šířka otvoru je zúžená pro celoskleněná dveřní křídla.
  • Dřevěná zárubeň možná na místě
  • na obrázku: Suchá konstrukce s dřevěným dveřním křídlem

NOVOSLIDE FRAME RAPID

  • s rohovým rámem nebo s jedno- či dvoudílným okolním rámem, pozinkovaným a opatřeným základním nátěrem.
  • Možnost mnoha variant provedení
  • na obrázku: Zděné s dřevěným dveřním křídlem, jednodílná obložková zárubeň.

TECHNOLOGIE A PODROBNOSTI

TECHNICKÉ DATOVÁNÍ NOVOSLIDE KAPSA

TECHNICKÉ DATOVÁNÍ NOVOSLIDE KAPSA

NOVOSLIDE KAPSA

Systém posuvných dveří NovoSlide Pocket obsahuje všechny komponenty, které potřebujete k vytvoření posuvných dveří vedených ve zdi.

  • volitelně pro dřevěné nebo skleněné dveře
  • volitelně jako stavebnice balená v kartonu / nebo jako předem smontované instalační prvky (na vyžádání).

Samonosný prvek obsahuje pro jedny dveře:





1 x systémový prvek / předem smontovaný na míru 1 x reverzibilní kolejnicový profil 1 x podlahové vedení pro dřevo nebo sklo 1 x oboustranně kuličkový dvojitý válečkový pojezd pro měkké zavírání 1 x kuličkový dvojitý válečkový pojezd s integrovaným čisticím kartáčem 1 x sada kování pro dřevo nebo sklo 1 x kuličkový dvojitý válečkový pojezd s integrovaným čisticím kartáčem



sada pro dřevo nebo sklo 1 x sada šroubů pro montáž prvků 1 x sada šroubů pro sádrokartonové obložení 1 x montážní pomůcky pro obložení 1 x montážní návod

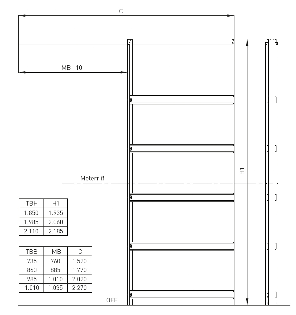
Dostupné velikosti dveřních křídel



Šířka 610 / 735 / 860 / 985 / 1 110 / 1 235 mm Výška1 985 / 2 110 / 2 235 mmze skladu

Pro tloušťku hotové stěny 125 mm / 150 mm v suché výstavbě.

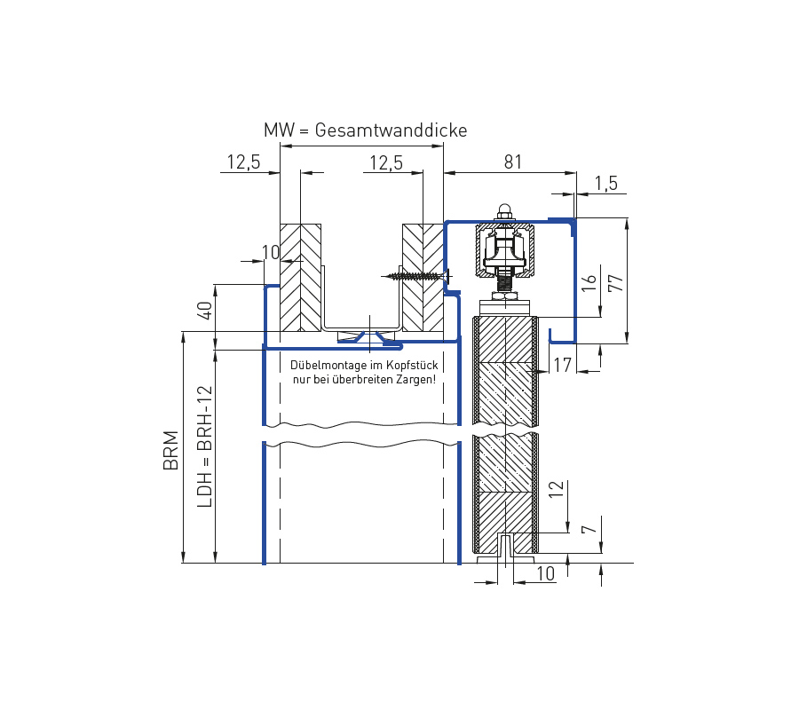
Sada vozíku vždy obsahuje oboustranné tlumení do hmotnosti dveřního křídla 80 kg pro šířku dveřního křídla od 610 mm. Parkovací polohy vrat se dosáhne jednoduchým umístěním aktivátorů v pojezdové dráze a lze ji také dodatečně namontovat. Integrované metrové značky na všech podélných profilech usnadňují přizpůsobení hotové podlaze.

Výškové vyrovnání pomocí volitelných nastavitelných patek. Tloušťka dveřního křídla pro dřevěné dveře do 40 mm, pro skleněné dveře volitelně 8 mm nebo 10 mm.

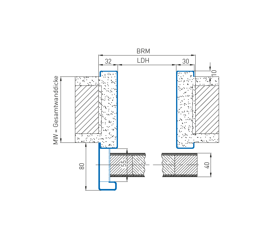
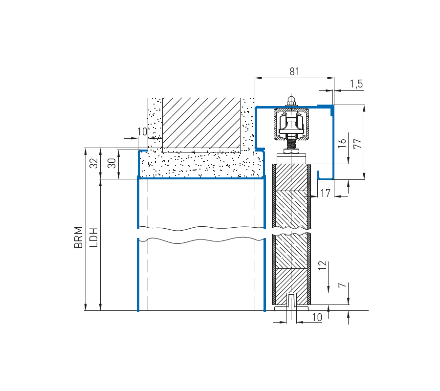
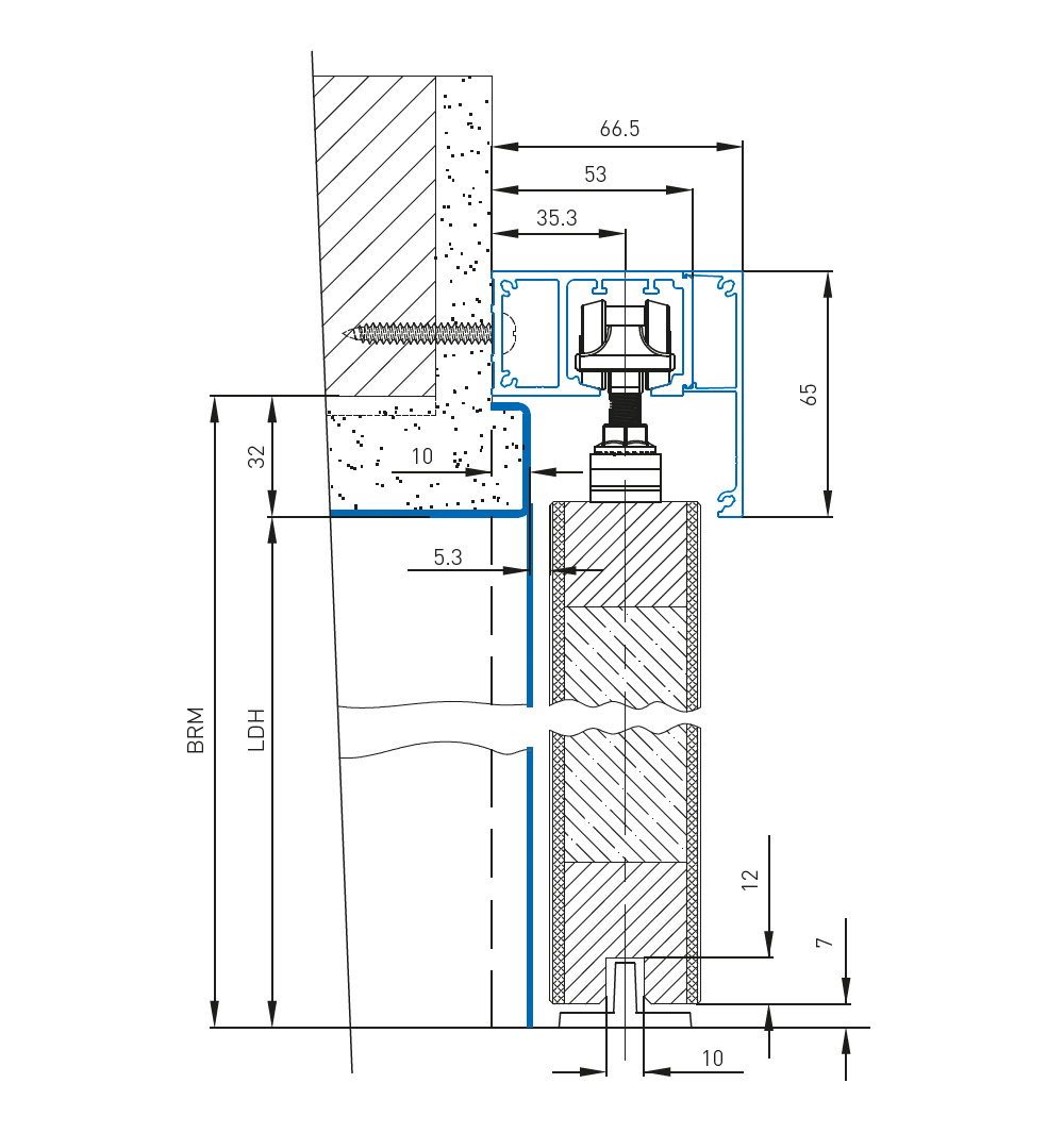
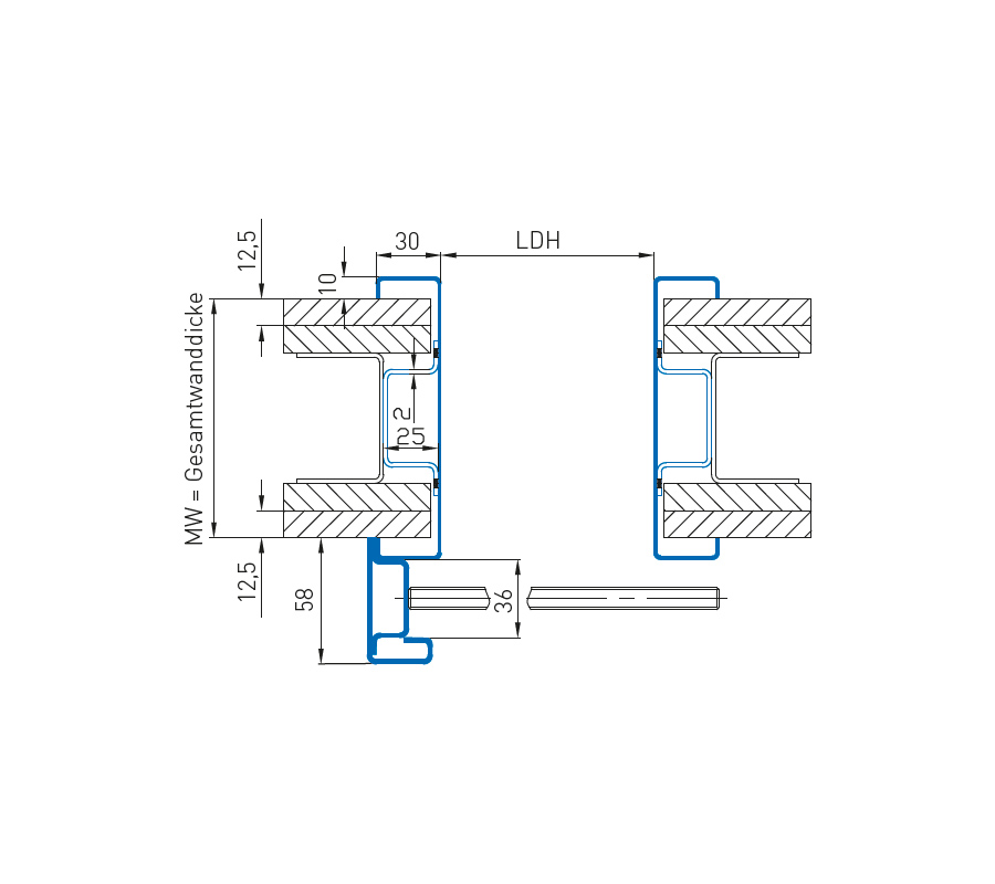
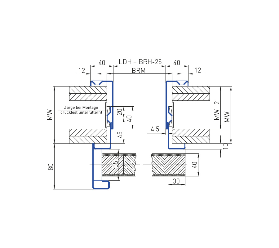
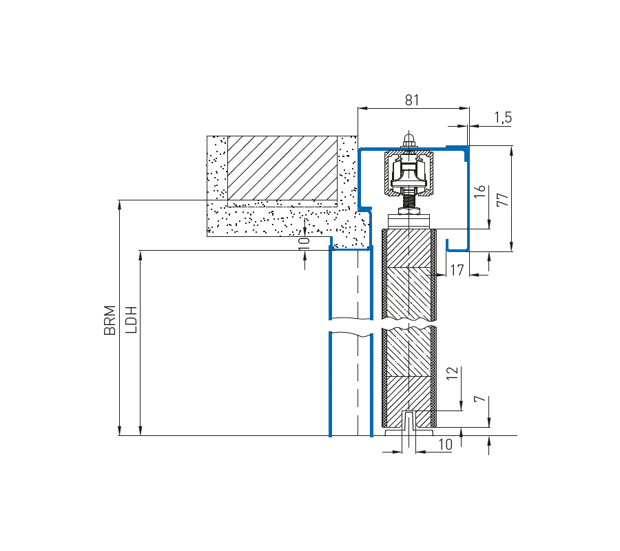
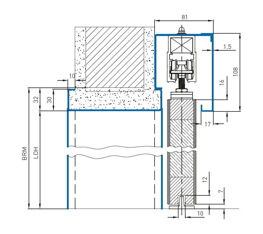
Horizontální řez: NovoSlide Pocket s ocelovým rámem Novoferm (nahoře na obrázku) nebo alternativně s odhaleným sádrokartonem Novoferm (dole na obrázku); možné také s dřevěným rámem (na místě).

NovoSlide Pocket, uspořádání profilů; TBH = výška dveřního křídla, TBB = šířka dveřního křídla, MB = montážní šířka.

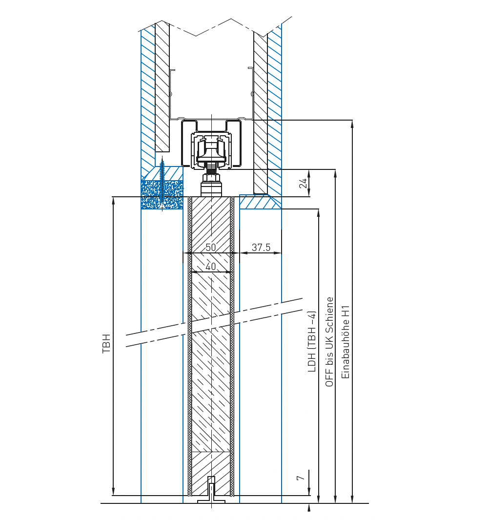
Vertikální řez: NovoSlide Pocket, s vodítkem GK

TECHNICKÉ DATOVÁNÍ NOVOSLIDE WALL

TECHNICKÉ DATOVÁNÍ NOVOSLIDE WALL

NOVOSLIDE WALL

Systém posuvných dveří NovoSlide Wall obsahuje všechny komponenty, které potřebujete k instalaci posuvných dveří před stěnu, včetně pojezdové dráhy a krycího panelu a sady válečků s tlumením na obou stranách pro měkké zavírání dveří.


Sada obsahuje pro jedny dveře 1 x profil pojezdové dráhy vč.








duté komory pro průchod stěnou 1 x podlahové vedení pro dřevo nebo sklo 1 x kuličkový pojezd s dvojitým ložiskem pro oboustranné tlumení 1 x kuličkový pojezd s dvojitým ložiskem a integrovaným čisticím kartáčem 1 x sada kování pro dřevo nebo sklo 1 x kryt klipu z eloxovaného hliníku EV1, volitelně také ve vzhledu nerezové oceli 2 x plastová koncovka 1 x drobné díly a montážní příslušenství 1 x montážní návod
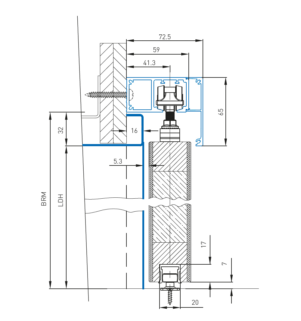
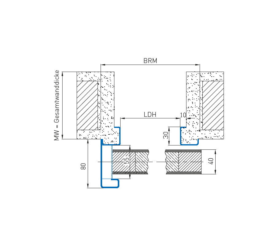
Geometrie dráhy zahrnuje integrovaný průchod stěnou pomocí duté komory ve 3 rozměrech.

V naší nabídce máme profily o šířce 47 mm, 53 mm a 59 mm pro vyrovnání vzdálenosti od stěny, např. pro lišty / zárubně dveří / vypínače nebo panely Smarthome na místě.

Dostupná délka profilu

2 050 / 2 500 / 3 500 / 5 800 mm

Sada válečků vždy zahrnuje oboustranné měkké zavírání až do hmotnosti křídla vrat 80 kg pro šířku křídla vrat od 580 mm. Parkovací polohy vrat se dosáhne jednoduchým umístěním aktivátorů do pojezdové dráhy. Profil je předvrtán po 250 mm.

Tloušťka dveřního křídla pro dřevěné dveře do 40 mm, pro skleněné dveře volitelně 8 mm nebo 10 mm.

Výškové a šířkové specifikace velikosti dveřního křídla, které je třeba určit, lze vypočítat pomocí odpočtových rozměrů podle montážního návodu.


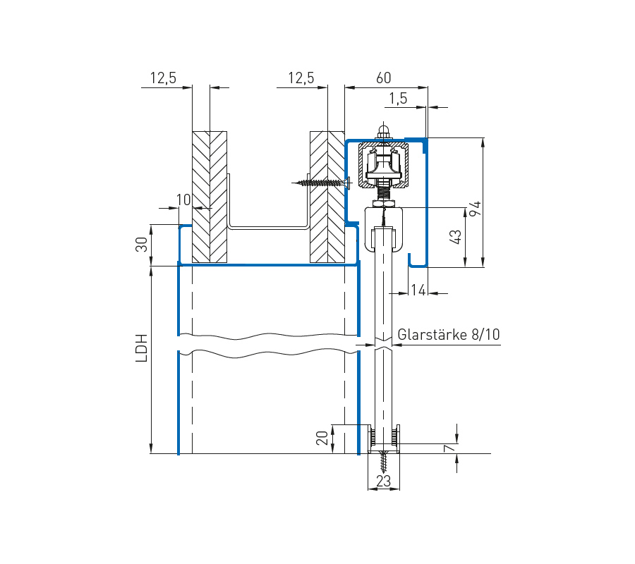
NovoSlide Wall, šířka profilu 53 mm, dřevěné dveřní křídlo a ocelová zárubeň, 10 mm omotávka zárubně


NovoSlide Wall, šířka profilu 47 mm, celoskleněné dveřní křídlo a ocelová zárubeň, 10 mm falcování


NovoSlide Wall, šířka profilu 59 mm, dřevěné dveřní křídlo a ocelový rám, rám 16 mm s vodicí lištou Deluxe.


NovoSlide Wall, šířka profilu 53 mm, celoskleněné dveřní křídlo a ocelový rám, 16 mm falcování

TECHNICKÉ ÚDAJE NOVOSLIDE FRAME

TECHNICKÉ ÚDAJE NOVOSLIDE FRAME

NOVOSLIDE RÁM

Systém posuvných dveří NovoSlide Frame, který se nachází před stěnou, je prefabrikovaný prvek sestávající z ocelového rámu s přivařenou kolejnicovou skříní.

  • Volitelně pro dřevěné nebo skleněné dveře
  • 1 nebo 2panelové
  • 1-dílný pro montáž podél stěny
  • 2-dílný pro dodatečnou montáž









Samonosný prvek obsahuje pro jedny dveře 1 x systémový prvek / prefabrikovaný na míru 1 x kolejnicový profil 1 x podlahové vedení pro dřevo nebo sklo 1 x kuličkový dvoukolečkový pojezd pro měkké zavírání na obou stranách (volitelně) 1 x kuličkový dvoukolečkový pojezd s integrovaným čisticím kartáčem 1 x sada kování pro dřevo nebo sklo 1 x montážní návod

Dostupné velikosti dveřních křídel

  • Všechny rozměry na míru jsou možné
  • Lze realizovat i speciální tloušťky dveřních křídel
  • Pro všechny tloušťky stěn v plné nebo suché konstrukci
  • Mnoho dalších možností, jako jsou větrací okna nebo boční panely
  • Různé geometrie rámových profilů z hlediska poloměrů a stínové drážky na protilehlé straně dveřního křídla

Rám NovoSlide probíhající před stěnou s okolním rámem pro zdivo

Rám NovoSlide probíhající před stěnou s okolním rámem pro zdivo

Rám NovoSlide před stěnou s rohovým rámem pro zdivo

Rám NovoSlide před stěnou s rohovým rámem pro zdivo

Rám NovoSlide procházející před stěnou se skleněnými dvířky s jednodílným prostorovým rámem pro instalaci podél stěny v suché výstavbě.

Rám NovoSlide procházející před stěnou se skleněnými dvířky s jednodílným prostorovým rámem pro instalaci podél stěny v suché výstavbě.

Rám NovoSlide procházející před stěnou s dvoudílným obklopujícím rámem pro dodatečnou montáž do sádrokartonových stěn.

Rám NovoSlide procházející před stěnou s dvoudílným obklopujícím rámem pro dodatečnou montáž do sádrokartonových stěn.

TECHNICKÉ ÚDAJE NOVOSLIDE ANTRIEB RAPID

NOVOSLIDE WALL RAPID

  • pro montáž na stěnu nebo volitelně na strop
  • zobrazeno zde: Zdivo s dřevěným dveřním křídlem
  • pro dřevěná dveřní křídla vždy s kuličkovým vedením podlahy a zapuštěným kováním

NOVOSLIDE KAPESNÍ RAPID

  • s dvoudílným ocelovým rámem, svařovaným nebo demontovaným, pozinkovaným a opatřeným základním nátěrem nebo volitelně s GK odhalením (na obrázku), šířka otvoru je zúžená pro celoskleněná dveřní křídla.
  • Dřevěná zárubeň možná na místě
  • na obrázku: Suchá konstrukce s dřevěným dveřním křídlem

NOVOSLIDE FRAME RAPID

  • s rohovým rámem nebo s jedno- či dvoudílným okolním rámem, pozinkovaným a opatřeným základním nátěrem.
  • Možnost mnoha variant provedení
  • na obrázku: Zděné s dřevěným dveřním křídlem, jednodílná obložková zárubeň.

Vzbudili jsme váš zájem?

Novoferm spolupracuje s širokou sítí specializovaných prodejců v Německu - ve vašem okolí. Naši autorizovaní specializovaní prodejci Novoferm poskytují odborné poradenství, prodej, měření, montáž, demontáž a ekologickou likvidaci našich výrobků za konkurenceschopné ceny all-inclusive.

Rádi vám pomůžeme.