NÁSTĚNNÉ ČEPICE

POŽÁRNÍ KLAPKY VE VYSOCE KVALITNÍM SILNÉM FALCU PRO MNOHO POŽADAVKŮ

Stěnové klapky Novoferm NovoPorta Premio s vysoce kvalitním silným falcem jsou k dispozici ve třídách požární ochrany EI2 30 a EI2 90, v bezpečnostním, víceúčelovém a zvukově izolačním provedení - v závislosti na provedení - pro vnitřní i venkovní použití.


Jednokřídlé ocelové požární klapkyHomely s tlustým falcem pro vnitřní nebo vnější použití jsou díky svému důsledně propracovanému vzhledu s vysoce kvalitním tlustým falcem a křídlem o tloušťce 64 mm ideální pro všechny požadavky v moderní výstavbě nemovitostí.


Vysoce funkční stěnové klapky NovoPorta Premio s vysoce kvalitním silným falcem jsou k dispozici jako protipožární (doEI2 90), kouřotěsné, bezpečnostní (do RC 3), víceúčelové a zvukově izolační klapky - pro jednotný vzhled v celé budově.


Mnoho výhod při montáži U stěnových klapek řady NovoPorta Premio si můžete vybrat z mnoha rychlých, snadných a čistých způsobů montáže a možností zasypání rámů (montáž pomocí vrutů, zasypání protipožární pěnou, rámy s protipožární ochranou z výroby atd.).

Srovnání a vlastnosti rolovacích klapek

Srovnání stěnových laloků NovoPorta Premio
Označení dveří

Silný vroubek

T30 (EI2 30)

T90 (EI2 90)

RS

Zvuková izolace

RC2

RC3

T30-1/EI2 30-1 Premio

Klapka 1-listá

-

-

-

-

-

T90-1/EI2 90-1 Premio

Klapka 1-listá

-

-

-

-

-

-

PODROBNOSTI ZU WALL FLAPS NOVOPORTA PREMIO EI 30 / EI 90

PODROBNOSTI ZU WANDKLAPPEN NOVOPORTA PREMIO EI2 30 / EI2 90


Kování: Standardně jeden 3dílný konstrukční závěs s kuličkovým ložiskem a jeden 3dílný pružinový závěs. Závěsy standardně opatřené základním nátěrem v bílé barvě podobné RAL 9016; na přání jsou k dispozici také v nerezové oceli. Třídílné nastavitelné závěsy z oceli a nerezové oceli jsou k dispozici pouze od výšky BRM > 1 000 mm (LD > 916 mm). Tyto rozměrové řady jsou zahrnuty v příslušných hlavních produktových stránkáchEI2 30 a EI2 90. Jeden zajišťovací čep na každé křídlo klapky. Výměnný profilový cylindrický zámek s černou kulatou pákovou sadou uloženou na pevném otočném ložisku. Profilová cylindrická vložka pro vnitřní klapky na místě (délka 85 mm, 35/50 mm). Součástí dodávky pro vnější klapky ve formě atrapy cylindrické vložky. Standardně klapky s vnitřní výztuhou pro horní zavírač dveří na straně závěsu.


Rámečky: Standardní rohový rámeček se čtyřstranným (EI2 30 = EPDM / EI2 90 = CR) těsnicím profilem, tloušťka 2,0 mm, šířka rámečku 50 mm, volitelný okolní rámeček, dvoudílný okolní rámeček profilu 2140B, pultový rámeček a blokový rámeček pro zapuštěné napojení na stěnu (EI2 30: také blokový rámeček pro montáž před stěnu).


Prahy: Standard B 1 se čtyřstranným okolním rámem. Bezprahové varianty nebo jiná provedení se spodním dorazem naleznete prostřednictvím autorizovaných rozměrových řad na příslušných hlavních produktových stránkách proEI2 30 a EI2 90.



Povrchy: Křídlo klapky a rám jsou pozinkované a opatřené základním nátěrem (práškovou barvou) podobným RAL 9016. Volitelně je k dispozici také křídlo klapky a rám s práškovou barvou v barvě RAL dle vlastního výběru.


Stěnové klapky NovoPorta Premio EI2 30 / EI2 90

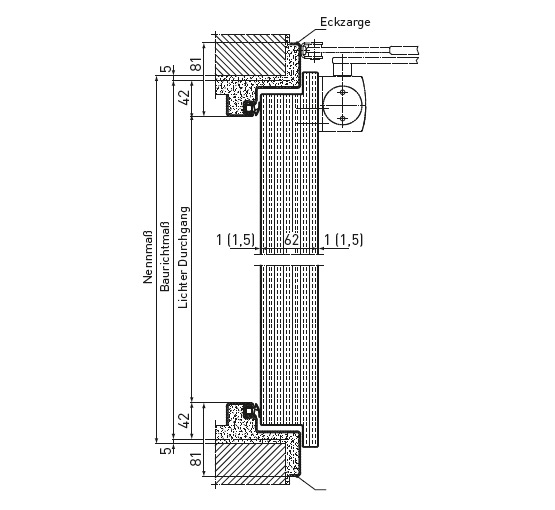
Horizontální sekce 1 panel

Vertikální řez

NA VYŽÁDÁNÍ TAKÉ S:

  • Ohnivzdorné zasklení (vždy je vyžadován zavírač horních dveří).
  • Ochrana proti kouři podle normy EN 1634-3 (u klapek > š x v 984 x 984 mm je vyžadován zavírač horních dveří) (světlý průchod (LD) 900 x 900 mm).
  • Zvuková izolace - zkoušeno podle EN ISO 140-3, posouzeno podle EN ISO 717-1 (laboratorní hodnota pro celé křídlo).
    • EI2 30 klapka 43 dB RwP
    • EI2 90 klapka 44 dB RwP
  • Odolnost proti vloupání RC 2 - oboustranně testováno podle EN 1627 - plné křídlo
  • RC 3 odolný proti vloupání - oboustranně testováno podle EN 1627.

Přehled vašich plusových bodů

  • Jednokřídlé protipožární stěnové klapky z oceli pro použití v interiéru nebo exteriéru
  • Požárně odolné nebo ohnivzdorné, zkoušené podle EN 1634-1 a schválené stavebními úřady podle DIN 4102 nebo evropského technického posouzení ETA-17/0443.
  • Křídlo klapky čtyřstranně zalomené se silným zalomením, tloušťka 64 mm, tloušťka plechu 1,0 mm (volitelně 1,5 mm).
  • Křídlo klapky s falcem na čtyřech stranách se silným falcem, tloušťka 64 mm, tloušťka plechu 1,0 mm (volitelně 1,5 mm)

Technologie a podrobnosti

TECHNICKÉ ÚDAJE NÁSTĚNNÉ KLAPKY NOVOPORTA PREMIO

STĚNOVÉ LALOKY NOVOPORTA PREMIO EI2 30 A EI2 90

Třída odolnosti / typ

NovoPorta Premio

NovoPorta Premio

Označení


EI2 30-1 Stěnová klapka


EI2 90-1 Stěnová chlopeň

Schválené rozměry

Konstrukční rozměr (BRM) Šířka min.
- max. (volný průchod (LD))


500 - 924 (416 - 840)


500 - 924 (416 - 840)

Výška min. - max.


715 - 924 (631 - 840)


715 - 924 (631 - 840)

Křídlo klapky a rám 4stranný obvodový (práh B1)

-

-

Další 4stranná provedení - volitelně také bez prahu - viz příslušné hlavní strany výrobků EI2 30 a EI2 90, do BMR (LD) max.


1 375 x 2 500 (1 291 x 2 458)


1 375 x 2 500 (1 291 x 2 458)

Dveřní křídlo

Tloušťka dveřního křídla přibližně

64

64

Tloušťka plechu cca.

1,0

(volitelně 1,5)

1,0

(volitelně 1,5)

Typ otvoru

Vlevo nebo vpravo

vlevo nebo vpravo

Stěny

Zdivo

> 115

> 175

Beton

≥ 100

≥ 140

Pórobetonové tvárnice / půdorysné bloky

≥ 150

≥ 175

Stěnové panely z pórobetonu

≥ 150

≥ 175

Stěny z F30-A/EI30 (klapka EI90 z F90-A/EI90) ze sádrokartonových protipožárních desek s ocelovými trny (podle DIN 4102, část 4, tabulka 10.2 nebo EN 13501-2).

≥ 100

≥ 100

Stěny z F30-B/EI30 ze sádrokartonových protipožárních desek s dřevěnými trny (podle DIN 4102, část 4, tabulka 10.3 nebo EN 13501-2)

≥ 130

-

Ostatní schválené instalační stěny min. F30-A/EI30 (klapka EI90 z F90-A/EI90) nebo F30-B/EI30 (ne pro klapku EI90) podle osvědčení o zkoušce obecného stavebního úřadu na vyžádání.

-

-


Pro klapku EI30: Opláštěné ocelové podpěry/ocelové nosníky min. F60-A/R60 nebo opláštěné dřevěné podpěry/dřevěné nosníky min. F60-B/R60 Pro klapku EI90: Opláštěné ocelové podpěry/ocelové nosníky min. F90-A nebo s klasifikací min. R90.

-

-

Exekuce

Ohnivzdorné/požárně odolné - testováno podle EN 1634-1

-

-

Také s požárně odolným zasklením1)

-

-

Také s ochranou proti kouři podle EN 1634-3

-

-


Také zvukově izolační (se čtyřstranným rámem B 1, bez skla, laboratorní hodnota podle EN ISO 717-1)

cca 43 dB RwP

cca 44 dB RwP

Také odolnost proti vloupání podle EN 1627 (plné křídlo; testováno na obou stranách)


RC 2 RC 3


RC 2 RC 3

Zasklení F30

Obdélníkové standardní zasklení s viditelně přišroubovanými zasklívacími lištami, standardně pozinkované a opatřené základním práškovým nátěrem (RAL 9016), na přání také s přídavnými krycími profily (bez viditelného upevnění) z oceli nebo nerezové oceli.

EI2 30 Minimální šířka vlysu na 3 stranách > 150 mm, na straně zámku ≥ 180 mm.EI2 90 Minimální šířka vlysu nahoře a na straně závěsu ≥ 200 mm, na straně zámku ≥ 220 mm, výška soklu ≥ 300 mm.

-

-

Kulaté standardní zasklení. Provedení zasklívacích lišt a minimální šířky vlysu/výšky soklu jako u standardního obdélníkového zasklení EI2 30 / EI2 90.

-

-

Speciální zasklení dle vlastního výběru. Provedení zasklívacích lišt a minimální šířky vlysu EI2 30 / EI2 90 / výšky soklu jako u standardního pravoúhlého zasklení.

-

-

Certifikace (schválení) jako vnitřní klapka podle ETA 17/0443

EI2 30 / CE

EI2 90 / CE

Certifikace (schválení) jako vnější klapka podle EN 16034 a EN 14351-1

EI2 30 / CE

EI2 90 / CE

- možné - není možné

¹) Standardní sklo pouze pro vnitřní použití (sklo chraňte před UV zářením a přímým působením halogenového světla). Sklo lze použít pouze pro teplotní rozsah od -20 do +45˚C. Náčrtky platí pouze pro dveře o rozměrech 1 000 x 2 000 mm / Všechny informace o rozměrech zasklení se vztahují na světlou výšku na jednotku skla. Provedení skel a maximální rozměry skel pro vnější použití na vyžádání.
Všechny rozměry v mm. BRM = stavební rozměr RAM = vnější rozměr rámu LD = světlý rozměr otvoru.

Vzbudili jsme váš zájem?

Novoferm spolupracuje s širokou sítí specializovaných prodejců v Německu - ve vašem okolí. Naši autorizovaní specializovaní prodejci Novoferm nabízejí odborné poradenství, prodej, měření, montáž, demontáž a ekologickou likvidaci našich výrobků za konkurenceschopné ceny all-inclusive.

Rádi vám pomůžeme.