NOVOFIRE ALUMINIUM-SYSTEME
SYSTÉMY PRO DVEŘE A STĚNY
Systémy hliníkových rámových profilů NovoFire® jsou ideální pro moderní komerční výstavbu. Díky elegantním povrchům, nadčasovému designu a mnoha variantám nabízejí ambiciózním architektům a projektantům téměř neomezené možnosti při navrhování transparentních protipožárních a kouřotěsných uzávěrů ve vnitřních prostorách. Jednokřídlé a dvoukřídlé dveře s nadsvětlíky a bočními výplněmi lze mezi sebou různě kombinovat.
Díky tloušťce stěny profilu 4 mm jsou systémy NovoFire® mimořádně stabilní a mají mimořádně kompaktní konstrukci s pouze jedním protipožárním jádrem ukotveným uprostřed. Výsledkem je standardizovaná šířka čelní stěny 150 mm pro všechny verze. Na základě velké poptávky je novinkou v sortimentu povrch "eloxovaný hliník" ve vzhledu nerezové oceli.
Pro moderní komerční výstavbu Systémy hliníkových rámových profilů NovoFire jsou ideální pro moderní komerční výstavbu. Díky tloušťce stěny profilu 4 mm jsou systémy mimořádně stabilní a mají mimořádně kompaktní konstrukci s pouze jedním protipožárním jádrem ukotveným uprostřed. Výsledkem je standardizovaná šířka čelní stěny 150 mm u všech verzí.
Vysoce funkční dveře s hliníkovým trubkovým rámem jsou k dispozici jako protipožární (doEI2 90), kouřotěsné, bezpečnostní (do RC 3) a víceúčelové - pro jednotný vzhled dveří v celé budově. Systémy Novoferm nabízejí jednotný vzhled a libovolnou kombinaci jednokřídlých a dvoukřídlých dveří, bočních panelů a větracích oken.
Mnoho výhod při instalaci Řada dveří nabízí mnoho výhod při instalaci a také rychlé a čisté postupy instalace. Například protipožární pěnou Novoferm lze mnohem rychleji a čistěji vyplnit profily a rámy v kovových a sádrokartonových konstrukcích. Obvyklé předchozí znalosti pro instalaci protipožárních dveří jsou zcela dostačující.
Porovnání a vlastnosti dveří
Srovnání dveří s hliníkovým trubkovým rámem
| Označení dveří | Schválení / | Rám | T30 | T90 | Kouř | RC 2 | RC 3 | Teplo |
| NovoFire RS | P-120003623-10 | hliník | - | |||||
| NovoFire T30 | Z-6.20-1845 | hliník | - | - | - | - | ||
| NovoFire F30 | Z-19.14-1769 | hliník | - | |||||
| NovoFire Thermo EI30 |
| hliník | - | - | - | |||
| NovoFire Glass 30 F30 | Z-19.14-2393 | hliník | - | |||||
| NovoFire T90 | Z-6.20-1836 | hliník | - | - | ||||
| NovoFire F90 | Z-19.14-1771 | hliník | - | |||||
| hliník Vnější dveře | - | Hliník | - | - | - |
Hlavní výhody Dveře s hliníkovým trubkovým rámem
Hlavní výhody Dveře s hliníkovým trubkovým rámem
POPIS SYSTÉMU Hliníkový dveřní prvek z jednokomorových dutých profilů. Dveře jsou testovány jako kouřotěsné dveře s automaticky spouštěným podlahovým těsněním podle normy DIN 18095. Čelní šířka rámu a křídla 150 mm, výška soklu 98-238 mm, montážní hloubka 74 mm (T30) nebo 90 mm (T90). Rozměr neaktivního křídla nesmí být u dvoukřídlých dveří menší než 500 mm. Prvky připravené k montáži.
KOVÁNÍ Zápustný zámek, připravený pro profilovou vložku, páková klika nebo vyměnitelné kování s oválnou rozetou z hliníku, nerezové oceli nebo PVC-U možné. Neaktivní křídlo je drženo horním uzamykacím mechanismem s vroubkovanou střelkou, alternativně je možná antipaniková funkce podle DIN EN 179 nebo DIN EN 1125. Horní zavírač dveří s posuvným kanálem podle DIN EN 1154, integrované uzamykací systémy pro RS a T30, pohon křídlových dveří podle DIN 18263/ DIN 18650.
Závěsy Dva dvoudílné hliníkové šroubovací závěsy na křídlo, nastavitelné ve třech rozměrech; pokud jsou vrata vybavena pohonem křídlových vrat, jsou nutné 3 závěsy. Místo šroubovacích závěsů jsou na přání k dispozici také válečkové závěsy.
Zasklení Bezpečnostní sklo VSG nebo ESG. Varianty zasklení a výplně tabulí, profily s jednostranným zasklívacím rámečkem a přídržnými lištami skla na opačné straně závěsu, suché zasklení s těsněním EPDM.
PEVNÁ ZASKLENÍ Zapuštěné napojení na dveře, alternativně je možné i samostatné, volitelně zkosené nebo s T-úhelníkovým napojením. Sloupky rámu musí probíhat nepřerušeně po celé výšce protipožárního zasklení.
POVRCH
- Standardní:
Povrchová úprava: prášková barva, konečná povrchová úprava, saténový lesk (RAL Classic dle výběru). - Volitelně:
eloxovaný, vzhled nerezové oceli, práškový lak v dekoru dřeva, barvy NCS.
Barvy a volitelné doplňky
Barvy a volitelné doplňky
DVEŘE S TRUBKOVÝM RÁMEM SE SPECIÁLNÍMI PRVKY ZATRAKTIVŇUJÍ KOUŘOVOU A PROTIPOŽÁRNÍ OCHRANU.
Základem je testovaná ochrana proti kouři a požáru, ale konstrukci charakterizují speciální prvky. Právě to dělá z řady NovoFire® řadu mnoha možností. Ať už se jedná o dekor a pocit dřeva nebo tónované sklo v různých barvách, systém lze díky individuální konfiguraci začlenit do jakéhokoli architektonického konceptu.
KOVÁNÍ Zápustný zámek, připravený pro profilovou vložku, pákovou kliku nebo vyměnitelné kování s oválnou rozetou z hliníku, nerezové oceli nebo PVC-U.
Neaktivní křídlo standardně držené horním uzamykacím mechanismem aktivního křídla, alternativně je možná antipaniková funkce podle DIN EN 179 nebo DIN EN 1125.
DESIGN S INOVATIVNÍMI ELEMENTY Dveře s trubkovým rámemNovoFire® nabízejí projektantům a majitelům budov ty nejlepší podmínky pro dovednou souhru tvarů, povrchů a materiálů. Například s dekorem dřeva, který je díky strukturovanému povrchu prakticky k nerozeznání od pravého dřeva.
Jiné dekory s kovovým vzhledem a tónovaná skla otevírají vysoce individuální řešení ve spektru mezi technicky chladným a přírodně ušlechtilým.
Závěsy Pouze dva třídílné rolovací závěsy na křídlo do výšky vrat 2,50 m, nastavitelné ve dvou rozměrech; pokud jsou vrata vybavena pohonem křídlových vrat, doporučujeme tři závěsy.
Možné jsou i jiné varianty závěsů, například šroubovací závěsy (trojrozměrně nastavitelné).
ATRAKTIVNÍ POVRCHY
- eloxovaný hliník, vzhled nerezové oceli nebo práškový lak (RAL Classic dle vašeho výběru).
- Práškově lakovaná ocel, základní nátěr RAL 9002 (šedobílá) nebo volitelně finální lakování (RAL Classic dle vašeho výběru).
Dekorativní vzhled a haptika přírodních materiálů, jako je dřevo
Podrobnosti Hliníkové systémy NovoFire pro dveře a stěny
Podrobnosti Hliníkové systémy NovoFire pro dveře a stěny
ROHRRAHMENTÜREN NOVOFIRE®
MERKMALE
[1] Zárubně dveří jsou ze tří stran opláštěny hladkými a černými protipožárními pásy s povrchovou úpravou z PVC.
[3] Zápustné dveře pro vysoký estetický standard s RS, T30 (EI 30) a T90 (EI 90).
[3] Tloušťka stěny 4 mm pro obzvláště vysokou stabilitu.
[4] Pouze jedno protipožární jádro
[5] Vnější komory jsou volné a lze je použít pro připevnění přídavných dílů
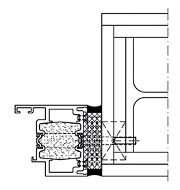
KŘÍŽOVÉ ŘEZY
Ať už se jedná o protihlukovou ochranu, protipožární ochranu T 30 nebo T 90: Dveře s trubkovým rámemNovoFire® se prezentují stejnými profesionálními povrchovými úpravami pro jednotný vzhled v celé budově.
VARIANTY KAPELY
Podrobnosti Hliníkové venkovní dveře
Podrobnosti Hliníkové venkovní dveře
HLINÍKOVÉ VENKOVNÍ DVEŘE- ÚSPORA ENERGIE NENÍ MATERIÁL Hliníkové venkovní dveře jsou stabilní profilový systém pro vysoce tepelně izolované dveřní systémy u bočních a zadních vchodů v průmyslových, obchodních a administrativních budovách. Pokrývá tedy i vedlejší prostory a výhodně doplňuje ostatní dveřní program Novoferm. Vnější dveře přesvědčí také svými dobrými technickými vlastnostmi, vynikajícími hodnotami Uƒ a četnými možnostmi provedení.
Závěsy Vhodné pro montáž všech komerčně dostupných kování. K dispozici je několik variant dveřních závěsů, od robustních šroubovacích závěsů až po zcela skryté dveřní závěsy a válečkové závěsy z hliníku nebo nerezové oceli.
KONSTRUKCE Robustní kombinace rámu a křídla s tloušťkou stěny 2 mm. Křídlové profily lze volitelně vybavit posuvnými izolačními lištami pro minimalizaci bimetalového efektu.
DVEŘNÍ PRAH Bezbariérová varianta prahu s montážní výškou 19 mm a skrytým upevněním zajišťuje opticky plynulý přechod z exteriéru do interiéru a díky speciálnímu základnímu profilu ji lze použít ve starých i nových budovách.
ROZMĚRY PROFILŮ Níže uvedené profily a rozměry profilů představují minimální požadavky. Je však možné, že ze statických důvodů budou použity zesílené profily.
Konstrukční hloubky profilů:
- Rám, zasklívací lišty, příčník 75 mm
- Rám křídla (dveří) 75 mm
Šířky čel profilů, dveře: (standardizované pro protipožární systém NovoFire®)
- Rám dveří včetně dveřního křídla 149 mm
Sokl dveří 150 mm
Podrobnosti Hliníkové venkovní dveře Thermo
Podrobnosti Hliníkové venkovní dveře Thermo
NOVOFIRE® THERMO ALU/POŽÁRNÍ OCHRANNÉ DVEŘE PRO EXTERIÉR Systém je založen na stabilních dutinkových profilechNovoFire® o tloušťce stěny 4 mm, se stavební hloubkou 90 mm, vhodných i pro velké světlé průchozí rozměry. Doba požární odolnosti 30 minut a vysoké tepelněizolační vlastnosti konstrukce jsou dosaženy vložením protipožárního izolantu vyvinutého společností Novoferm.
Individuální požadavky na bezpečnost budovy lze realizovat kombinací prvků vybavení.
POPIS Maximální flexibilita a kompatibilita hardwaru a příslušenství. Komponenty lze vybrat podle aplikace. Robustní dvoudílné šroubovací závěsy jsou k dispozici v různých barvách: E6/EV1 = standard, RAL dle vlastního výběru a ve vzhledu nerezové oceli.
KONSTRUKCE Robustní kombinace rámu a křídla s tloušťkou stěny 4 mm. Vysoká izolace pro případ požáru EI130 C5.
DVEŘNÍ PRAH Bezbariérová varianta prahu s montážní výškou 19 mm a skrytým upevněním zajišťuje opticky plynulý přechod z exteriéru do interiéru a díky speciálnímu základnímu profilu ji lze použít ve starých i nových budovách.
ROZMĚRY PROFILU Rozměry profilu jsou vzhledově shodné se systémem protipožární a kouřové ochrany NovoFire.
- Konstrukční hloubka profilu: 90 mm
- Šířka čela profilu: 150 mm
- Rám dveří včetně dveřního křídla
- Sokl dveří: 98 mm
Přehled vašich plusových bodů
- Kouřotěsnost podle DIN 18095
- Třídy požární odolnosti T30 (EI2 30) / F30 nebo T90 (EI2 90) / F90 podle DIN 4102.
- Odolnost proti vloupání podle DIN EN V1627 pro dveře T30 (EI2 30) třídy RC1 (WK1) nebo RC2 (WK2), volitelně také RC3 (WK3).
- Jednokřídlé nebo dvoukřídlé kouřové/požární dveře lze kombinovat s pevnými prvky v libovolném uspořádání muntinových lišt do výšky 4,0 m (F90) nebo 5,0 m (F30).
- Lze integrovat horní zavírače dveří, elektrické úderníky nebo dokonce antipanické funkce podle norem DIN EN 179 nebo DIN EN 1125.
- Všechny systémy mají v celém rozsahu stejný vzhled a dveře, boční panely a světlíky lze kombinovat podle potřeby.
- Rám a dveřní profil jsou vzájemně v jedné rovině
- Četné možnosti použití a maximální volnost designu
Technologie a podrobnosti
Technická data Dveře s trubkovým rámem s ochranou proti kouři
Technická data Dveře s trubkovým rámem s ochranou proti kouři
| Třída odolnosti | Ochrana proti kouři | |||||
| Typové označení | NovoFire® hliník | NovoFire® hliník | NovoFire® | Dveře NovoFire® RS | ||
| Rozdělení prvků | ||||||
| Svahy | - | - | - | - | ||
| Kulaté oblouky | - | - | - | - | ||
| Výklenky | - | - | - | - | ||
| úhelník | - | - | - | - | ||
| Rozšíření | - | - | - | - | ||
| Rozměry | ||||||
| Celkové rozměry | Šířka min. - max. | 624 - 1834* | žádné specifikace | 1500 - 3270* | neomezeně | |
Výška min. - max. | 1750 - 3135* | žádné specifikace | 1755 - 3135* | max. 5015 ¹)²) | ||
| Vnější rozměr rámu | Šířka min. - max. | 604 - 1804* | 621 - 1821* | 1470 - 3240* | neomezený | |
Výška min. - max. | 1740 - 3120* | 1749 - 3129* | 1740 - 3120* | max. 5000 ¹)²) | ||
| Velikost disku | Šířka min. - max. | 454 - 1414 | 454 - 1414 | 1320 - 2850 | - | |
Výška min. - max. | 1665 - 2925 | 1665 - 2925 | 1665 - 2925 | - | ||
| Dveřní křídlo | ||||||
| Stavební hloubka | 74 | 74 | 74 | 74 | ||
| Zobrazit | 150 | 159 | 150 | 75 | ||
| Výška podstavce | 98 - 238 | 98 - 238 | 98 - 238 | 75 - 225 | ||
| Profil příčníku | 98 | 98 | 98 | 98 | ||
| Lepené příčky | 20 - 140 | 20 - 140 | 20 - 140 | 20 - 140 | ||
| Stěny | ||||||
| Zdivo | ≥ 115 | ≥ 115 | ≥ 115 | ≥ 115 | ||
| Beton | ≥ 100 | ≥ 100 | ≥ 100 | ≥ 100 | ||
| Pórobetonové tvárnice nebo rovinné bloky | ≥ 175 | ≥ 175 | ≥ 175 | ≥ 175 | ||
| Pórobetonové desky | ≥ 150 | ≥ 150 | ≥ 150 | ≥ 150 | ||
Sloupové stěny Příčníky a ocelové sloupky | ≥ 95 | ≥ 95 | ≥ 95 | ≥ 95 | ||
Příčkové stěny a dřevěné sloupky |
|
|
|
| ||
| Opláštěný a neopláštěný ocelový prvek | - | - | - | - | ||
| opláštěný dřevěný prvek | - | - | - | - | ||
| Kombinované dveře/prosklení | - | - | - | - | ||
| Z-rám | - | - | - | - | ||
| Výplně | ||||||
| Tloušťka zasklení | 1302 x 2782 | 1302 x 2782 | 1302 x 2782 | - | ||
| panel | - | - | - | - | ||
| Sklo / panel | - | - | - | - | ||
| Skleněná vložka | Mokré zasklení | - | - | - | - | |
Suché zasklení | - | - | - | - | ||
| Varianty provedení | ||||||
| s vějířovým světlem a bočním panelem | - | - | - | - | ||
| se světlíkem | - | - | - | - | ||
| s bočním panelem | - | - | - | - | ||
Dveře s ochranou proti kouři podle DIN 18095 a DIN EN 1634 - Část 3 | - | - | - | - | ||
Konstrukční maximum zvukové izolace Rw,P (Rw,R) | 42 (37) | - | 42 (37) | - | ||
| Odolnost proti vloupání ³) | - | - | - | - | ||
| Součinitel prostupu tepla Uf | - | - | - | - | ||
Zkušební osvědčení/čísla schválení | P-120003623-10 | P-120003623-10 | P-120003623-10 | P-120003623-10 | ||
| Testováno podle | DIN 4102 a DIN EN 1634 | |||||
- možné - nemožné * vč. rozšíření rámu dveří vlevo, vpravo a ve výšce 120 mm ¹) podle statických požadavků ²) Montáž dveří RS-1 nebo RS-2 do pevného zasklení: Doporučujeme ztužující trubku vlevo a vpravo od profilu rámu pevného zasklení. H < 3500 bez ztužující trubky, H < 4000 s hliníkovou trubkou 80 x 50 x 4, H < 4500 s hliníkovou trubkou 100 x 50 x 4. Dveře RS-1 se mohou montovat do pevného zasklení. trubkou 80 x 50 x 4, H < 4500 s hliníkovou trubkou 100 x 50 x 4, H < 5000 s hliníkovou trubkou 120 x 50 x 4 ³) Možné na základě systému "System NovoFire® T30". | ||||||
| Všechny rozměry v mm, RAM = vnější rozměr rámu. | ||||||
Technické údaje T30 (EI 30) protipožární dveře s trubkovým rámem
Technické údaje T30 (EI 30) protipožární dveře s trubkovým rámem
| Třída odolnosti | T30 (EI2 30) / F30 | |||||
| Typové označení | NovoFire® hliník | NovoFire® hliník | NovoFire® | NovoFire® F30 s T30 | ||
| Rozdělení prvků | ||||||
| Šikmé | - | - | - | - | ||
| Kulaté oblouky | - | - | - | - | ||
| Výklenky | - | - | - | - | ||
| úhelník | - | - | - | - | ||
| Rozšíření | - | - | - | - | ||
| Rozměry | ||||||
| Celkové rozměry | Šířka min. - max. | 634 - 1834* | 811 - 3312* | 1500 - 3270* | neomezeně | |
Výška min. - max. | 1750 - 3135* | 1915 - 3820* | 1755 - 3135* | max. 5015 ¹)²) | ||
| Vnější rozměr rámu | Šířka min. - max. | 604 - 1804* | 781 - 3282* | 1470 - 3240* | neomezeně | |
Výška min. - max. | 1740 - 3120* | 1900 - 3805* | 1740 - 3120* | max. 5000 ¹)²) | ||
Světlý průchod s otevřením 180° | Šířka min. - max. | 454 - 1414 | 454 - 1414 | 1320 - 2850 | - | |
Výška min. - max. | 1665 - 2925 | 1665 - 2616 | 1665 - 2925 | - | ||
| Dveřní křídlo | ||||||
| Stavební hloubka | 74 | 74 | 74 | 74 | ||
| Zobrazit | 150 | 159 | 150 | 75 | ||
| Výška podstavce | 98 - 238 | 98 - 238 | 98 - 238 | 75 - 225 | ||
| Profil příčníku | 98 | 98 | 98 | 98 | ||
| Lepené příčky | 20 - 140 | 20 - 140 | 20 - 140 | 20 - 140 | ||
| Stěny | ||||||
| Zdivo | ≥ 115 | ≥ 115 | ≥ 115 | ≥ 115 | ||
| Beton | ≥ 100 | ≥ 100 | ≥ 100 | ≥ 100 | ||
| Pórobetonové tvárnice nebo rovinné bloky | ≥ 175 | ≥ 175 | ≥ 175 | ≥ 175 | ||
| Pórobetonové desky | ≥ 150 | ≥ 150 | ≥ 150 | ≥ 150 | ||
Sloupové stěny Příčníky a ocelové sloupky | ≥ 95 | ≥ 95 | ≥ 95 | ≥ 95 | ||
Příčkové stěny a dřevěné sloupky |
|
|
|
| ||
| Opláštěné a neopláštěné ocelové prvky | - | - | - | - | ||
| opláštěný dřevěný prvek | - | - | - | - | ||
| Kombinované dveře/prosklení | - | - | - | - | ||
| Z-rám | - | - | - | - | ||
| Výplně | ||||||
Contrafl am 30 - 1 / Contrafl am 30 - V6 (Contrafl am 30 - V22) / Contrafl am 30 - V24 (Contrafl am 30 - V26) / Contrafl am 30 IGU max. šířka x výška |
|
| ||||
Pyrostop typ 30 - 1 / Pyrostop typ 30 - 10 / Pyrostop typ 30 - 2 / Pyrostop typ 30 - 20 / +P2A, P4A, P6B / Pyrostop 30 - 1.Iso / Pyrostop 30 - 2.Iso max. šířka x výška Šířka x výška |
|
| ||||
Promaglas 30, typ 1 / Promaglas 30, typ 2 / Promaglas 30, typ 20 | 1302 x 2782 |
| ||||
| Panel | - | - | - | - | ||
| Sklo / panel | - | - | - | - | ||
| Skleněná vložka | Mokré zasklení | - | - | - | - | |
Suché zasklení | - | - | - | - | ||
| Varianty provedení | ||||||
| s vějířovým světlem a bočním panelem | - | - | - | - | ||
| se světlíkem | - | - | - | - | ||
| s bočním panelem | - | - | - | - | ||
Kouřotěsné dveře podle DIN 18095 a DIN EN 1634 - část 3 (v kombinaci s DIN 4102) | - | - | - | - | ||
Konstrukční maximum zvukové izolace Rw,P (Rw,R) | 40 (35) | - | 40 (35) | - | ||
| Odolnost proti vloupání ³) | WK 1-3 | WK 1-3 | - | - | ||
| Součinitel prostupu tepla Uf | - | - | - | - | ||
Zkušební osvědčení/čísla schválení | Z-6.20-1845 |
| Z-6.20-1845 | Z-19.14-1769 | ||
| Zkoušeno podle | DIN 4102 a DIN EN 1634 | |||||
- možné - nemožné * vč. rozšíření rámu dveří vlevo, vpravo a ve výšce 120 mm ¹) podle statických požadavků ²) Montáž dveří RS-1 nebo RS-2 do pevného zasklení: Doporučujeme ztužující trubku vlevo a vpravo od profilu rámu pevného zasklení. H ≤ 3500 bez ztužující trubky, H ≤ 4000 s hliníkovou trubkou 80 x 50 x 4, H ≤ 4000 s hliníkovou trubkou 80 x 50 x 4. Dveře RS-1 se mohou montovat do pevného zasklení, trubkou 80 x 50 x 4, H ≤ 4500 s hliníkovou trubkou 100 x 50 x 4, H ≤ 5000 s hliníkovou trubkou 120 x 50 x 4 ³) Možné na základě systému "System NovoFire® T30". | ||||||
| Všechny rozměry v mm, RAM = vnější rozměr rámu | ||||||
Technická data T90 (EI 90) protipožární dveře s trubkovým rámem
Technická data T90 (EI 90) protipožární dveře s trubkovým rámem
| Třída odolnosti | T90 (EI2 90) / F90 | ||||||
| Typové označení | NovoFire® hliník | NovoFire® hliník | NovoFire® F90 s T90 | ||||
| Uspořádání prvků | |||||||
| Svahy | - | - | - | ||||
| Kruhové oblouky | - | - | - | ||||
| Výklenky | - | - | - | ||||
| úhelník | - | - | - | ||||
| Rozšíření | - | - | - | ||||
| Rozměry | |||||||
| Celkové rozměry | Šířka min. - max. | 634 - 1834* | 1500 - 2730* | neomezeně | |||
Výška min. - max. | 1750 - 3135* | 1750 - 2610* | max. 4015 ¹)²) | ||||
| Vnější rozměr rámu | Šířka min. - max. | 604 - 1710* | 1470 - 2700* | neomezeně | |||
Výška min. - max. | 1740 - 2600* | 1740 - 2600* | max. 4000 ¹)²) | ||||
Volný průchod s otevřením 180° | Šířka min. - max. | 454 - 1320 | 1320 - 2310 | - | |||
Výška min. - max. | 1665 - 2405 | 1665 - 2405 | - | ||||
| Dveřní křídlo | |||||||
| Stavební hloubka | 90 | 90 | 90 | ||||
| Zobrazit | 150 | 150 | 75 | ||||
| Výška podstavce | 98 - 238 | 98 - 238 | 98 - 238 | ||||
| Profil příčníku | 98 | 98 | 98 | ||||
| Lepené příčky | 20 - 140 | 20 - 140 | 20 - 140 | ||||
| Stěny | |||||||
| Zdivo | ≥ 175 | ≥ 175 | ≥ 175 | ||||
| Beton | ≥ 140 | ≥ 140 | ≥ 140 | ||||
| Pórobetonové tvárnice nebo rovinné bloky | ≥ 200 | ≥ 200 | ≥ 200 | ||||
| Pórobetonové desky | ≥ 175 | ≥ 175 | ≥ 175 | ||||
Příčkové stěny a ocelové sloupky | ≥ 100 | ≥ 100 | ≥ 100 | ||||
Kolíkové stěny příčníky a dřevěné sloupky | - | - | - | ||||
| Opláštěné a neopláštěné ocelové prvky | - | - | - | ||||
| opláštěný dřevěný prvek | - | - | - | ||||
| Kombinované dveře/prosklení | - | - | - | ||||
| Z-rám | - | - | - | ||||
| Výplně | |||||||
| Contraflam 90 | Šířka x výška max. | 1208 x 2261 | 1208 x 2261 | ||||
| Světlík | 2347 x 939 |
| |||||
| Boční panel | 939 x 2413 | ||||||
| Pyrostop typ 90-1 | Šířka x výška | 1208 x ≤ 2261 | 1208 x 2261 | ||||
| Celková plocha | ≤ 2,44 m² | ≤ 2,44 m² | |||||
| Střešní okno | 2347 x 939 | ||||||
| Boční panel | 939 x 2413 | ||||||
| Pyrostop typ 90-2 | Šířka x výška | 1208 x ≤ 2261 | 1208 x 2261 | ||||
| Celková plocha | ≤ 2,44 m² | ≤ 2,44 m² | |||||
| Střešní okno | 2347 x 939 | ||||||
| Boční panel | 939 x 2413 | ||||||
| Panel | - | - | - | ||||
| Sklo / panel | - | - | - | ||||
| Skleněná vložka | Mokré zasklení | - | - | - | |||
Suché zasklení | - | - | - | ||||
| Varianty provedení | |||||||
| s vějířovým světlem a bočním panelem | - | - | - | ||||
| se světlíkem | - | - | - | ||||
| s bočním panelem | - | - | - | ||||
Kouřotěsné dveře podle DIN 18095 a DIN EN 1634 - část 3 (v kombinaci s DIN 4102) | - | - | - | ||||
Konstrukční maximum zvukové izolace Rw,P (Rw,R) | 42 (37) | 42 (37) | - | ||||
| Odolnost proti vloupání ³) | WK 1-3 | WK 1-3 | - | ||||
| Součinitel prostupu tepla Uf | - | - | - | ||||
Zkušební certifikát/čísla schválení | Z-6.20-1845 | Z-6.20-1836 | Z-19.14-1771 | ||||
| Zkoušeno podle | DIN 4102 a DIN EN 1634 | ||||||
- možné - nemožné * vč. rozšíření rámu dveří vlevo, vpravo a ve výšce 120 mm ¹) v souladu se statickými požadavky ²) Montáž dveří RS-1 nebo RS-2 do pevného zasklení: Doporučujeme ztužující trubku vlevo a vpravo od profilu rámu pevného zasklení. H ≤ 3500 bez ztužující trubky, H ≤ 4000 s hliníkovou trubkou. trubkou 80 x 50 x 4, H ≤ 4500 s hliníkovou trubkou 100 x 50 x 4, H ≤ 5000 s hliníkovou trubkou 120 x 50 x 4. | |||||||
| Všechny rozměry v mm, RAM = vnější rozměry rámu. | |||||||
Technické údaje bezpečnostní dveře s trubkovým rámem RC 2 / RC 3
Technické údaje bezpečnostní dveře s trubkovým rámem RC 2 / RC 3
| Třída odolnosti | RC 2 | RC 3 | ||||
| Typové označení | NovoFire® T30 | NovoFire® T30 | NovoFire® T30 | |||
| Rozměry | Celkové rozměry | Šířka min. - max. | 1080 - 1485 | 1080 - 1485 | 1840 - 2530 | |
| Výška min. - max. | 1840 - 2530 | 1840 - 2530 | 1840 - 2530 | |||
| Hloubka rámu | Instalační hloubka | 74 | 74 | 74 | ||
| Zobrazení šířky profilu rámu | 75 | 75 | 75 | |||
| Stěny (tloušťka bez omítky) | Zdivo/obnažené zdivo (pevnost cihel 12/ malta skupiny II) | ≥ 115 | ≥ 115 | ≥ 115 | ||
| Beton (B15) | ≥ 100 | ≥ 120 | ≥ 120 | |||
| Pórobeton (pevnost v tlaku ≥ 4/ vázaný) | ≥ 170 | ≥ 240 | ≥ 240 | |||
| Opláštěný ocelový prvek min. F60-A | - | - | - | |||
| Výplně | Sklo s bezpečnostními vlastnostmi F30 | P4A Tloušťka ≥ 21 | P5A tloušťka ≥ 21 | P5A tloušťka ≥ 21 | ||
- | P6B tloušťka ≥ 21 | P6B Tloušťka ≥ 21 | ||||
| Deska s bezpečnostními vlastnostmi F30 |
|
|
| |||
| Bezpečnostní vybavení | Počet bezpečnostních kolíků | 3 | 3 | 3 | ||
| Zámek se zápustnou závorou s pružinovým zámkovým nástavcem s horním uzamykáním | - | - | - | |||
| Zadlabávací zámek s horním uzamykáním | - | - | - | |||
| Vícebodový zámek | - | - | - | |||
| Vícebodový zámek s otvíráním A | - | - | - | |||
| E-otvírač 1) | - | - | - | |||
Bezpečnostní zámková vložka podle EN 1303 třídy 4 nebo DIN 18252 třídy 21, 31, 71 BZ | Délka uzamykací vložky je: tloušťka dveřního křídla 74 mm + tloušťka ochranného kování, uzamykací vložka nesmí přesahovat dveřní desku o více než 3 mm. | |||||
| Výměnná sada, DIN 18257/ ES 1 dlouhá deska | - | - | - | |||
| Sada pákových rukojetí, DIN 18257/ ES 1 dlouhá deska | - | - | - | |||
| sada pákových rukojetí, DIN 18257/ ES 3 dlouhá deska | - | - | - | |||
| Sada pákových rukojetí, DIN 18257/ ES 3 dlouhá deska | - | - | - | |||
| Paniková funkce podle EN 179 | - | - | - | |||
| Paniková funkce podle EN 1125 s tlačítkem (dotykovou lištou) | - | - | - | |||
| Paniková funkce podle EN 1125 s tlačítkovou lištou | - | - | - | |||
| Paniková funkce B (spínací funkce pro sadu pákových klik) | - | - | - | |||
| Paniková funkce D (průchozí funkce pro sadu pákových klik) | - | - | - | |||
| Paniková funkce E (funkce výměny pro sadu pákových rukojetí) | - | - | - | |||
| Válečkový závěs | - | - | - | |||
| Šroubovací závěs dvoudílný 3D se zámkem závěsu | - | - | - | |||
| Skryté závěsy | - | - | - | |||
| Magnetické kontakty | - | - | - | |||
| Šroubové kontakty | - | - | - | |||
| Zavírač horních dveří | - | - | - | |||
| Skrytý zavírač dveří | - | - | - | |||
| Práh pro dveře s únikovou funkcí | č. 2) | č. 2) | Ne 2) | |||
| Zasklení | Suché zasklení | - | - | - | ||
| Mokré zasklení | - | - | - | |||
| Zasklívací lišta upnutá nebo přichycená | - | - | - | |||
| Zasklívací lišta přišroubovaná | - | - | - | |||
| Další funkce | Protipožární ochrana | T30-1 | T30-1 | T30-2 | ||
| Ochrana proti kouři | - | - | - | |||
| Zvuková izolace v závislosti na vybavení až do (Rw) | Až 40 dB | Až 40 dB | Až 40 dB | |||
| Testováno podle | DIN EN 1627 | |||||
1) Elektrický zámek v kombinaci s hlavním zámkem není povolen. 2) V kombinaci s panikovým zámkem (dotykovou lištou) není vyžadován práh. | ||||||
Technické údaje hliníkové vnější uzávěry
| Třída odolnosti | Tepelně izolované vnější uzávěry | ||||
| Typové označení | Dveře s 1 křídlem | Dvoukřídlé dveře | Prosklení | ||
| Uspořádání prvků | |||||
| Svahy | - | - | - | ||
| Kruhové oblouky | - | - | - | ||
| Výklenky | - | - | - | ||
| úhelník | - | - | - | ||
| Rozšíření | - | - | - | ||
| Rozměry | |||||
| Celkové rozměry | Šířka min. - max. | 625 - 1450 | 1500 - 2400 | neomezeně | |
Výška min. - max. | 1750 - 2505 | 1750 - 2400 | 5000 ¹) | ||
| Vnější rozměr rámu | Šířka min. - max. | 605 - 1425 | 1470 - 2395 | neomezeně | |
Výška min. - max. | 1740 - 2495 | 1740 - 2385 | 5000 ¹) | ||
Světlý průchod s otevřením 180° | Šířka min. - max. | 461 - 1281 | 1322 - 2247 | - | |
Výška min. - max. | 166 - 2417 | 1668 - 2313 | - | ||
| Dveřní křídlo | |||||
| Stavební hloubka | 75 | 75 | 75 | ||
| Zobrazit | 149 | 149 | 74 | ||
| Výška podstavce | 152 | 152 | 176 | ||
| Profil příčníku | 76 - 96 | 76 - 96 | 76 - 96 | ||
| Lepené příčky | 20 - 140 | 20 - 140 | 20 - 140 | ||
| Stěny | |||||
| zdivo | - | - | - | ||
| beton | - | - | - | ||
| Pórobetonové tvárnice nebo ploché bloky | - | - | - | ||
| Pórobetonové desky | - | - | - | ||
| Stěny z trnů | - | - | - | ||
| Opláštěný ocelový prvek | - | - | - | ||
| opláštěný dřevěný prvek | - | - | - | ||
| Kombinované dveře/prosklení | - | - | - | ||
| Z-rám | - | - | - | ||
| Výplně | |||||
| Tloušťka zasklení 4) | 24-52 mm | ||||
| Panel | - | - | - | ||
| Sklo / panel | - | - | - | ||
| Skleněná vložka | Mokré zasklení | - | - | - | |
Suché zasklení | - | - | - | ||
| Varianty provedení | |||||
| s vějířovým světlem a bočním panelem | - | - | |||
| s ventilátorem | - | - | - | ||
| s bočním panelem | - | - | - | ||
| Třída propustnosti spár | 4 | 4 | 4 | ||
| Třída těsnosti při dešti | do 6 A | do 6 A | - | ||
| Zvuková izolace | 40 dB | 40 dB | 40 dB | ||
| Odolnost proti vloupání | WK 2 | WK 2 | - | ||
| Součinitel prostupu tepla Uf | 1,3 - 1,9 W/m²K | 1,3 - 1,9 W/m²K | 1,3 - 1,9 W/m²K | ||
| Označení CE podle EN 14351-1 | - | - | - | ||
| Testováno podle | DIN 4102 a DIN EN 1634 | ||||
- možné - není možné ¹) podle statických požadavků ²) bez fasády, bez výklopných a otočných oken ³) možné i jiné rozměry 4) K dispozici jsou všechny komerčně dostupné typy skel | |||||
| Všechny rozměry v mm, RAM = vnější rozměr rámu | |||||
Montáž
JEDNODUCHÁ MONTÁŽ A RYCHLÉ ZASYPÁNÍ RÁMU
Následující video vám krok za krokem ukáže, jak instalovat dveře s trubkovým rámem Novoferm a možnosti zasypání rámu protipožární pěnou Novoferm. Videa a informace jsou určeny pouze jako doplněk k návodu k instalaci, obsluze a údržbě. Nenahrazují odbornou instalaci provedenou kvalifikovaným a vyškoleným odborným personálem.
INSTALACE DVEŘÍ S TRUBKOVÝM RÁMEM NOVOFERM
V tomto videu z oblasti dveří a dveří s trubkovým rámem společnost Novoferm názorně ukazuje montáž dveří s trubkovým rámem na příkladu dveří NovoFire® Alu T30 s podrobným vizuálním popisem jednotlivých kroků montáže.
Další videa najdete na kanálu Novoferm na YouTube:
https://www.youtube.com/NovofermVideos
Tovární předmontáž a dodávka
Tovární předmontáž a dodávka
Novoferm protipožární pěna
Novoferm protipožární pěna
RYCHLÁ INSTALACE DVEŘÍ S PROTIPOŽÁRNÍ PĚNOU NOVOFERM
S protipožární pěnou Novoferm lze profily a rámy v kovových a sádrokartonových konstrukcích zasypat mnohem rychleji a čistěji. Obvyklé předchozí znalosti pro montáž protipožárních dveří jsou zcela dostačující. Zdokumentování montáže v souladu se schválením je velmi jednoduché. K tomuto účelu slouží snadno odnímatelné samolepicí štítky 1 na plechovce s pěnou, které se jednoduše nalepí na potvrzení o shodě 2 a obsahují všechny potřebné informace.
Jednodušší, čistší a rychlejší způsob instalace protipožárních dveří dnes neexistuje.
INSTALACE DO BETONU, ZDIVA A MONTÁŽNÍCH STĚN
INSTALACE NA OPLÁŠTĚNÉ OCELOVÉ SLOUPY
Vzbudili jsme váš zájem?
Novoferm spolupracuje s širokou sítí specializovaných prodejců v Německu - ve vašem okolí. Naši autorizovaní specializovaní prodejci Novoferm nabízejí odborné poradenství, prodej, měření, montáž, demontáž a ekologickou likvidaci našich výrobků za konkurenceschopné ceny all-inclusive.
Rádi vám pomůžeme.