VÍCEÚČELOVÉ DVEŘE NOVOPORTA PLANO MZ

Víceúčelové dveře v zapuštěném provedení pro sofistikovanou architekturu

Novoferm Víceúčelové dveře NovoPorta Plano se zapuštěnými dveřními křídly jsou k dispozici pro vnitřní i vnější použití.


Elegantní, pod omítku zapuštěný vzhled Designové multifunkční dveře NovoPorta Plano podtrhují zejména sofistikovanou architekturu. Díky modulu pro zapuštěnou montáž se dveře instalují do jedné roviny s rámem ve zdi. (U dveří s falcovým modulem naopak dveřní křídlo spočívá na rámu).


Vysoce funkční ocelové dveře NovoPorta Plano se zapuštěným designem jsou k dispozici jako protipožární dveře(EI2 30), kouřotěsné dveře, bezpečnostní dveře (RC 2), zvukově izolační dveře (až do RW = 42 dB) a víceúčelové dveře - pro jednotný vzhled dveří v celé budově.


Mnoho výhod při montáži U této řady dveří si můžete vybrat z mnoha rychlých, snadných a čistých způsobů montáže a možností zasypání rámu (montáž pomocí vrutů, zasypání protipožární pěnou, sypkou minerální vatou, ....).

Porovnání a vlastnosti dveří

Srovnání víceúčelových dveří NovoPorta Plano
Označení dveří:

MZ-1 Plano

MZ-2 Plano

Vchod na zadní straně

-

-

RS

-

-

Tlumení zvuku

-

-

RC2

-

-

RC3

-

-

RC4

-

-

Tepelně izolační

-

-

také pro použití v exteriéru

-

-

DIN EN 14351-1

-

-

Přehled víceúčelových dveří Plano MZ
Označení

Plano MZ-1

Plano MZ-2

Dveře 1 +2 zapuštěné

Dveře 1 fl.

Dveře 2 fl.

Zapuštěná montáž - dostupné tloušťky dveřních výplní

zapuštěná montáž 1,0

zapuštěné se zářezem 1,0

Ochrana proti kouři podle DIN 18095/ DIN EN 1634-3

-

-

Bezpečnost podle DIN EN 1627

RC 2 (WK 2)

RC 2 (WK 2)

 

Zkušební hodnota zvukové izolace RWp

35 dB1)

41 dB2)

38 dB4)

33 dB1)

41 dB2)

38 dB4)

Součinitel prostupu tepla U v W/m2K

1,5

1,6

Stavební rozměr mm

min. 625 x 1750

max. 1375 x 2750

min. 1375 x 1750

max. 2750 x 2750

Podrobnosti o přístroji NovoPorta Plano MZ-1 / MZ-2


Kování: standardně 3dílné 3D nastavitelné konstrukční závěsy s kluznými ložisky. Dva závěsy na křídlo (≥ 2 500 mm výšky BRM tři závěsy) standardně opatřené základním nátěrem v bílé barvě podobné RAL 9016; na přání k dispozici také v nerezové oceli. Dva zajišťovací čepy na každé dveřní křídlo. Výměnný profilový cylindrický zámek s čelní deskou z nerezové oceli se sadou černých kulatých pákových klik s kulatými růžicemi. Profilová cylindrická vložka na místě (délka 90 mm, 45/45 mm).


Navíc pro dvoukřídlé dveře: Zapuštěný středový doraz s těsněním ve středovém záklonu. Neaktivní křídlo se závorou na přední hraně, uzamykání směrem nahoru a dolů. Rámy: Standardní rohový rám s třístranným těsnicím profilem, tloušťka 2 mm, šířka zrcadla 50 mm, volitelný okolní rám, dvoudílný profil okolního rámu 2240B, protirám a blokové rámy pro připojení ke stěně na tupo.


Rámy: Standardní rohový rám s třístranným těsnicím profilem, tloušťka 2 mm, šířka rámu 50 mm, volitelný okolní rám, dvoudílný profil okolního rámu 2240B, pultový rám a blokové rámy pro tupé spojení stěn.


Prahy: Standardně A v jedné rovině s podlahou, volitelně B3 se čtyřstranným okolním rámem nebo C2 se spodním dorazem nebo těsnicí prahy RS1 se spouštěným podlahovým těsněním, dvojitý práh RS1 nebo hrbový práh RS2 s nájezdovým těsněním.


Povrchy: Dveřní křídlo a rám pozinkované a opatřené základním nátěrem (práškovou barvou) podobným RAL 9016. Na přání je k dispozici také dveřní křídlo a rám s designovým povrchem Novoferm.

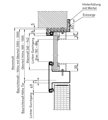
Vertikální řez

Vodorovná část, 1 panel

Svislý řez prosklenou horní částí

Vodorovná část, 2panelová

Vertikální řez horní částí plného listu

NA VYŽÁDÁNÍ TAKÉ S:

  • Horní část - celoplošná nebo prosklená
  • ISO zasklení - také ve speciálních provedeních a speciálních tvarech
  • Ochrana proti kouři podle DIN 18095 se spouštěným podlahovým těsněním (RS1) nebo s kročejovým prahem s nájezdovým těsněním (RS2). Jednokřídlé dveře s posuvným kanálovým zavíračem Novoferm NFGS 55. Dvoukřídlé prvky s posuvným kanálovým zavíračem Geze TS 5000 ISM nebo Dorma TS 93 GSR s integrovaným řízením sekvence zavírání a vratovou hnací závorou s aretací směrem nahoru.
  • Zvuková izolace - testováno podle DIN EN ISO 140-3, posouzeno podle DIN EN ISO 717-1 (laboratorní hodnota pro plné křídlo a práh RS1 - u jednokřídlých prvků 35 dB RW,P, u dvoukřídlých prvků ve zkušebním postupu).
  • Odolnost proti vloupání RC2 (WK2) - oboustranně testováno podle DIN EN 1627 - jednokřídlé do BR 1 375 x 2 750 mm, dvoukřídlé do BR 2 500 x 2 500 mm.

Highlights Multifunkční ocelové dveře

Tato animace ukazuje hlavní výhody a možnosti multifunkčního systému Novoferm.ocelových dveříjsou prezentovány ve vizuálně přitažlivé a zhuštěné podobě.

Další animace naleznete na adrese

https://www.youtube.com/NovofermVideos

Přehled vašich plusových bodů

  • Jednokřídlé a dvoukřídlé víceúčelové dveře z oceli pro vnitřní i venkovní použití.
  • Testované provozní vlastnosti podle DIN EN 14351-1 s označením CE
  • Spádované dveřní křídlo na tupo, tloušťka 64 mm, tloušťka plechu 1,0 mm.
  • Vysoce kvalitní minerální vlna jako izolační výplň
  • Křídlo a rám dveří pozinkované a opatřené základním nátěrem (práškovou barvou) podobným RAL 9016.

Technologie a podrobnosti

Technická data Plano MZ

Technická data PLano MZ

Třída odolnosti / typ

Označení

NovoPorta Plano MZ-1

jednokřídlá

NovoPorta Plano MZ-2

dvoukřídlá

Schválené rozměry
Konstrukční rozměr (BRM) Šířka min. - max.

625 - 1.375

1.375 - 2.750

Výška min. - max.

1.750 - 2.750

1.750 - 2.750

s horním panelem Výška max.

3.500

3.500

z toho dveře Výška max.

2.500

2.500

Ochrana proti kouři s horním panelem BRM max.

3.500

3.500

Dveřní křídlo
Tloušťka dveřního křídla přibližně

64

64

Tloušťka plechu cca.

1,0

1,0

Kráčející list Šířka min. - max.

-

589 - 1.353

Neaktivní list šířka min. - max.

-

525 - 1.353

Typ otevření

levý nebo pravý


Aktivní křídlo vlevo nebo vpravo

Verze


Tepelně izolované, plné křídlo, všechna prahová provedení (hodnotaUd dveří W/(m2)K)


1.5

1,6

Také s prosklením

-

-

Také s ochranou proti kouři

-

-


také zvukově izolační (s dolním těsněním, bez skla) (laboratorní hodnota pro celokřídlé dveře podle DIN EN ISO 717-1).


cca 35 dB RW,P


cca 35 dB RW,P


Rovněž odolnost proti vloupání podle DIN EN 1627 (celokřídlé dveře; zkoušeno oboustranně) 2) do BRM (LD) max.


RC 2


RC 2

Označení CE v souladu s normou EN 14351-1

-

-

Také s konstrukčním povrchem Novoferm BMR max.

1.250 x 2.250

2.500 x 2.250

Dostupné zasklení
(suché zasklení s pryžovým profilem)




Obdélníkové standardní zasklení s viditelně přišroubovanými zasklívacími lištami ve standardním pozinkovaném a práškově lakovaném základním nátěru (RAL 9016), volitelně k dispozici také s přídavnými krycími profily (bez viditelného upevnění) z nerezové oceli.

Minimální šířka vlysu na 3 stranách ≥ 150 mm, na straně zámku a na středovém dorazu neaktivního křídla ≥ 180 mm.

Dostupné rozměry:



300 x 300 400 x 400 500 x 500

-



Kulaté standardní zasklení Provedení zasklívacích lišt a minimální šířky vlysů/šířky vlysů jako u obdélníkového standardního zasklení.


Dostupné rozměry: ø 350 ø 450

-






Speciální zasklení dle vlastního výběru, od 150 x 150 mm do 935 x 2134 mm (jednokřídlé) nebo 849 x 2134 mm (dvoukřídlé) Provedení zasklívacích lišt a minimální šířky vlysu / šířky vlysu jako obdélníkové standardní zasklení.

-

-

- možné - není možné

Všechny rozměry v mm. BRM = stavební rozměr RAM = vnější rozměr rámu LD = rozměr světlého průchodu

Náčrtky platí pouze pro dveře o rozměrech 1 000 x 2 000 mm / Všechny údaje o rozměrech prosklení se vztahují na světlý průchod na prosklenou jednotku.
¹) Horní výplně pro dveře s dodatečnou ochranou proti kouři jsou k dispozici pouze do max. šířky BRM 1 250 mm pro jednokřídlé dveře. Ve spojení s kouřovou ochranou schváleno pouze pro montáž do plných stěn (zdivo/beton/porézní beton).

Vzbudili jsme váš zájem?

Novoferm spolupracuje s širokou sítí specializovaných prodejců v Německu - ve vašem okolí. Naši autorizovaní specializovaní prodejci Novoferm nabízejí odborné poradenství, prodej, měření, montáž, demontáž a ekologickou likvidaci našich výrobků za konkurenceschopné ceny all-inclusive.

Rádi vám pomůžeme.